166㎡四居新中式风格富豪花园
发布时间:
2025年10月12日
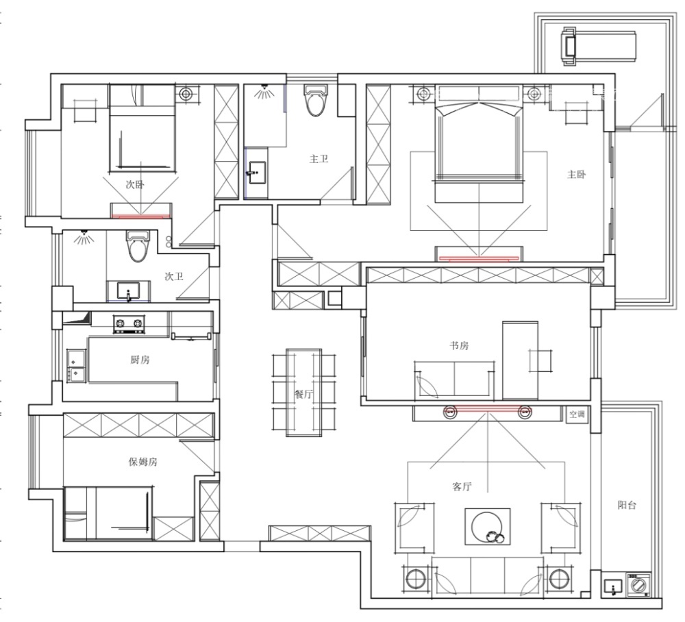
小区:富豪花园 面积:166㎡ 户型:四居 风格:新中式风格
设计说明
本案的设计风格主要以新中式风格为主,注重空间的层次感和跳跃感,通过中式屏风、隔断等设计手法,巧妙划分空间,展现家居的层次美。
新中式风格设计主要选择带有中国传统文化底色的装饰品,如陶瓷、书法、挂画、灯具等。这些装饰品不仅能提升空间的艺术气息,还能展现文化底蕴。
新中式风格的装修强调自然与和谐的居住理念。它注重空间的通风与采光,引入大量的自然元素,如绿植、水景等,让室内空间与自然环境相互呼应。同时,它还注重空间的布局与流线,追求居住的舒适与便捷。
新中式风格注重传统与现代的融合。它运用传统的中式元素,如木质家具、屏风、窗花等,与现代简约的设计理念相结合,营造出既有古典韵味又不失现代感的空间。这种融合不仅让空间更加富有层次感,也让传统文化在现代生活中焕发新的光彩。
户型图

次卧室

客厅


主卧室





京公安网备11010502040911