200㎡四居混搭风格三江住宅小区
发布时间:
2025年10月08日
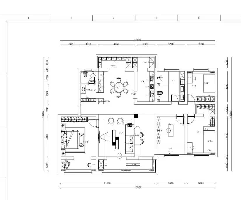
小区:三江住宅小区 面积:200㎡ 户型:四居 风格:混搭风格
设计说明
本案位于西宁市城西区新宁路,是一套四室两厅两卫的户型,业主怀揣着对理想家园的美好憧憬,期望这个项目能巧妙地融合中式和法式风格,营造出通透明亮且自然松弛的独特氛围。
设计师了解过业主诉求后,用开放式设计手法赋予空间新特性,既有古典美学的雅致,又有法式风的浪漫优雅,来达到一种恰到好处的平衡。法式中国风集优雅、文化、艺术及历史于一身,用中式的典雅素净碰撞法式的浪漫大气,有法式的浪漫也有东方艺术的雅致,更符合现代年轻人的审美。
户型图

主卧室

法师线条装饰
卫生间

三分离的方式
客厅

氛围感拉满
户型图

四室两厅两卫




京公安网备11010502040911