85㎡三居新中式风格中洲里程
发布时间:
2020年07月23日
小区:中洲里程 面积:85㎡ 户型:三居 风格:新中式风格
设计说明
本方案风格为新中式风格,本次设计为精装房改造,墙面以简单线条勾勒出新中式的立体感,顶面也采用装饰线条点缀,没有过多复杂造型与累赘。整个空间主要采用软装搭配来体现新中式韵味,以简洁的线条勾勒空间,令空间的框架简练、明朗。同整体空间简约优美,带出浅浅的现代硬朗的风情,却不着重笔,令线条彰显出一种流畅的动感。简洁的柱体再行略显庄重,家居的整体韵调悠然而出。
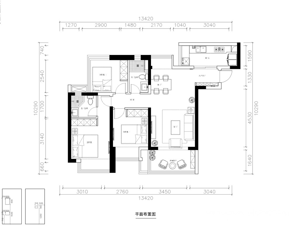
户型图

卫生间

卧室

客厅






京公安网备11010502040911