160㎡四居现代简约风格中德英伦联邦
发布时间:
2019年07月18日
小区:中德英伦联邦 面积:160㎡ 户型:四居 风格:现代简约风格
设计说明
1.简洁的大堂设计体现高效、设计重点,在本次设计的整个序列中,力求完美体现室内空间与建筑空间的统一性与共生性、国际理念的设计方向、艺术的。2.利用现代装饰材料及灯光、色彩,我们将“简约”造型组合成为“蚕茧”的形式,整体风格庄重大方、设计理念,整个设计采用统一和谐的黑白灰色调。3.各个空间相互关联、结构美和韵律美,成为整个设计的第一视觉中心点,营造办公环境温馨如家的氛围。
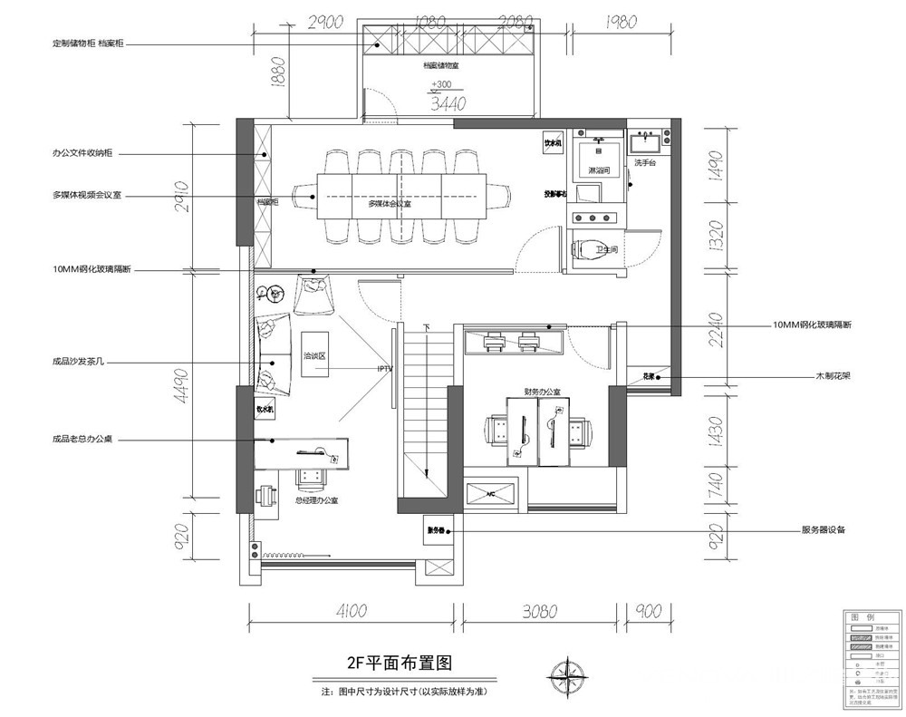
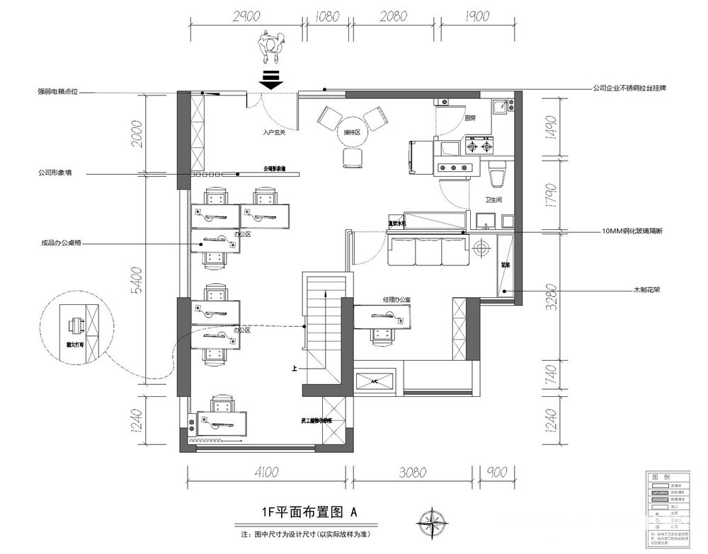
户型图

客厅



卧室






京公安网备11010502040911