170㎡四居现代简约风格万科公园五号
发布时间:
2019年07月03日
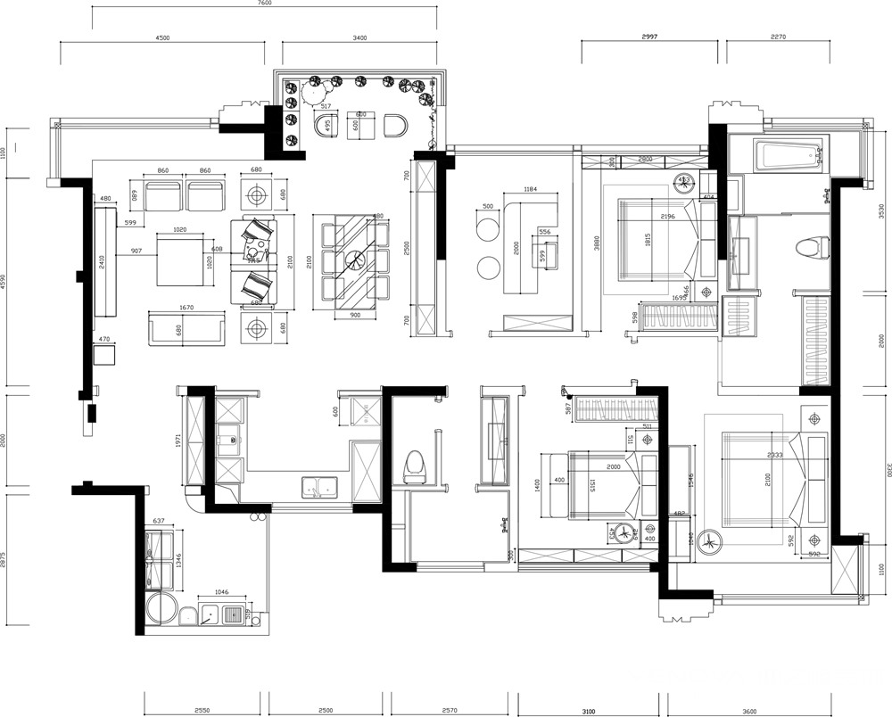
小区:万科公园五号 面积:170㎡ 户型:四居 风格:现代简约风格
设计说明
家具摆放形式,软装色调,家具尺寸,都按照风水易经讲究。客厅的大红酸枝中式家具都以实心靠背,风水意为“坐实”,坐垫布艺用帝王黄点缀,意为五行之土,餐边柜高度,佛像高度,都按照风水鲁班尺精确定位。卧室则更注重客户在该环境的心态情绪,温馨的暖黄色调,柔软的灯光透过布艺灯罩,打在墙布上形成层层光斑,棉麻锦缎,花鸟墙绘,茶灯杯盏,无不烘托东方之韵律。
户型图

卧室



书房

客厅







京公安网备11010502040911