124㎡四居联发君悦华庭
发布时间:
2019年06月09日
小区:联发君悦华庭 面积:124㎡ 户型:四居 风格:
设计说明
装修热线:0791-86296016,本案的女主人对美式情有独钟,喜欢清爽干净的居住空间,不需要喧嚣的奢华,只需要简单安静的生活.设计的色调以米白色,再配上少亮的咖色,米色,加以撞击,使整个空间产生明高的对比,给人以眼前一亮的效果,沙发墙的石膏线造形,充满了时尚感,且性价比极高。简约的设计让心灵在喧嚣的都市里得到一种纯净和安宁,摒弃了繁琐,显示出井然有序的理性空间。
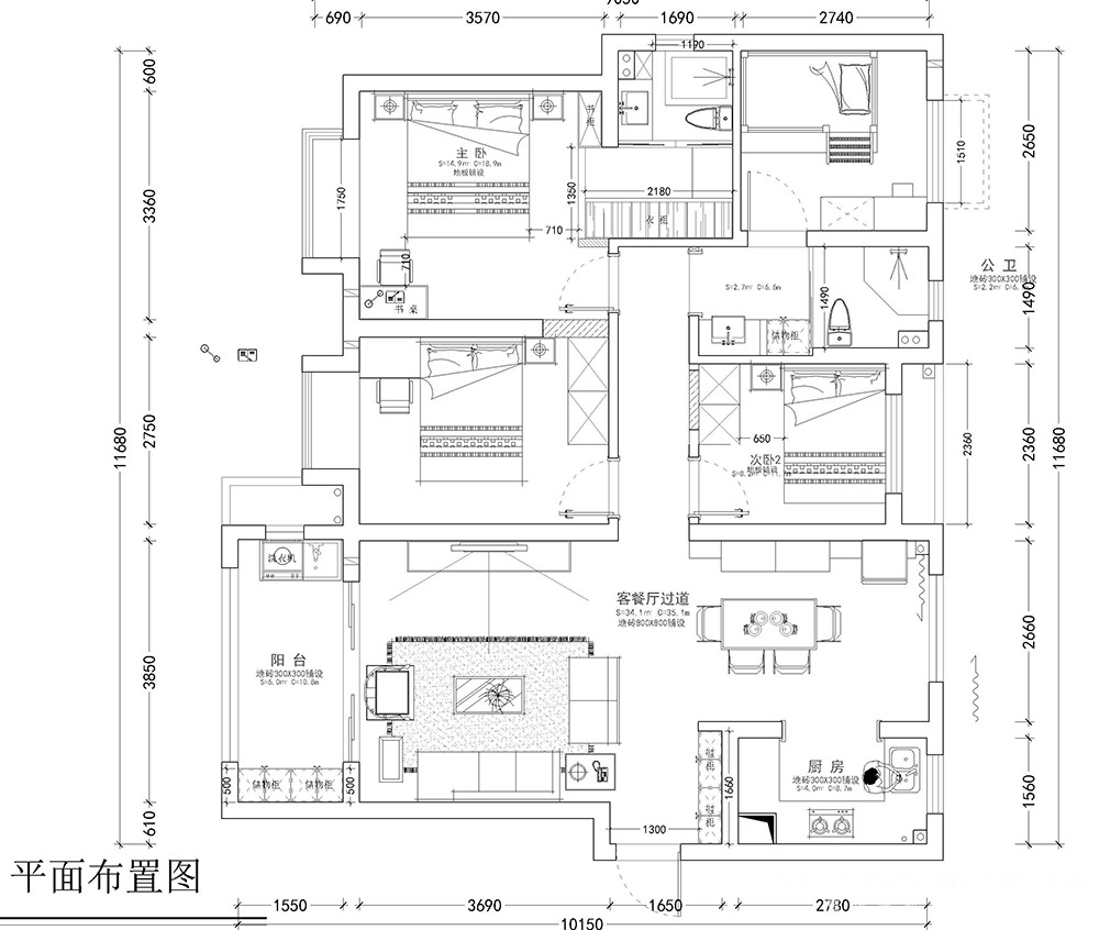
户型图

卫生间

客厅



卧室





京公安网备11010502040911