143㎡四居中古风格绿城锦玉园
发布时间:
2025年10月27日
小区:绿城锦玉园 面积:143㎡ 户型:四居 风格:中古风格
设计说明
中古风用色最大的特点,就是大胆且沉稳。之所以说大胆,是因为色彩多、面积大,大批量采用活泼生动的色彩,敢于用色以及难度较高的撞色搭配。之所以说沉稳,是因为采用的都是高纯度偏暖的色调,给人一种安稳、沉静的视觉感受。在本案中,温润的中古风,恰如其分地融合了岁月的质感与生活的温度。在空间里找到平衡点,让木质肌理与暖调灯光交叠出静谧氛围,让每一件生活小事都被时光记住!
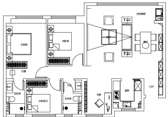
户型图

户型图

本案位于西宁市海湖新区,是一套四室两厅两
卫生间

卫生间做了干湿分离的设计,通过将淋浴区与
次卧室

次卧没有做定制衣柜,而是放置了成品的衣柜
主卧室

主卧室床头背景墙采用石膏线做了造型,上下
餐厅

客餐厅是横厅式布局,打破了传统竖厅的空间
客厅

横厅式的布局拥有更大的采光面,能引入更多




京公安网备11010502040911