165㎡四居中古风格海工大单位房
发布时间:
2025年12月14日
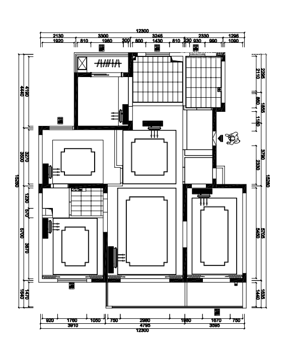
小区:海工大单位房 面积:165㎡ 户型:四居 风格:中古风格
设计说明
根据客户要求户型不动为出发点,做常规的4室2卫1厨1厅2阳,入户没有给客户砌墙来隔开厨房与入户区,用两组柜子背靠背的方式,节省空间的前提下满足客户对鞋柜和户型不动的双重需求,风格根据客户喜好来设计,整体温馨又不缺乏美观,着重点在入户侧墙和客厅双背景墙形成呼应,几种颜色的叠加有拼接艺术的感觉,女儿房和次卧的小空间以温馨为主,主卧以大气为主,形成主次之分,单独进入某一个空间时都有不同的感觉。
户型图

大厅







京公安网备11010502040911