152㎡四居意式极简万科东望
发布时间:
2025年10月22日
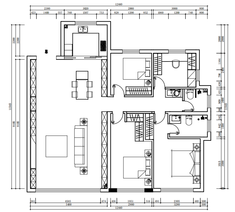
小区:万科东望 面积:152㎡ 户型:四居 风格:意式极简
设计说明
本方案主要是现代意式风格为主题主要追求简单为极致美的想法,以最简单的形式,理性的方案,对房子进行简约又大气的装饰。多数以黑白灰的颜色为主色调,以金色、咖色、银色进行搭配。以实木、皮革、石材,金属进行装饰,材质耐用,既展又示出了高贵的气质,又表现出了简约的视觉效果,充分体现了简约而不简单的艺术风格,这种充分的将艺术美感和实用价值进行了完美的融合,让整体的家庭既美观又舒适。
地板采用了公共区域与生活区域分开的方式,公共区域采用了750*1500的瓷砖,既显示出了公共空间的大气,又提升了整个空间得美感,生活区域采用
户型图

卧室

客厅






京公安网备11010502040911