210㎡四居意式极简海伦春天
发布时间:
2025年09月26日
小区:海伦春天 面积:210㎡ 户型:四居 风格:意式极简
设计说明
空间设计以意式轻奢风格为主,以打造优雅,舒适且高质的生活体验。入户门左手餐边鞋柜一体不仅具备具有收纳功能,而且与吊顶相呼应,形成一条直线,在视觉上更加规整和舒适。接着是一个大型厨房,中间的岛台使备菜更为方便,也避免了空间浪费,U字型的厨房,按照洗菜切菜炒菜人体工程学动线等生活方式布局。厨房后面就是男孩房,将房间与走廊的墙面打通后,做了一个双面衣柜,面朝走廊的可以当作一个储物柜,增加一楼储物空间,而靠窗一侧的床头柜则做成了书桌,增加实用性。紧挨着的女孩房,因为面积大,所以在门后做了一整面的衣柜,与吊顶平齐,柜体延伸出梳妆台,除此之外右边靠墙还做了一面衣柜,衣柜左侧是开放式的,可以放置展示物品,增加趣味性,门口的双台盆节约了小孩早上的洗漱等待时间,楼梯间靠窗是一个清洁区域,右侧则是一个开放式的茶室,增加了整体的功能性,前面则是一个靠墙的长条吧台,使客厅跟茶室的区域划分的更加清晰,将客厅与阳台融为一体后,显得更加的整体大气,与门口的鞋柜相呼应,使整体空间更加整洁美观,圆形餐桌位于入户门口,背后的造型墙体将楼梯与洗衣区遮挡,保证整体美观性,二楼楼梯间则是作为了一个洗衣区,右边直接通往露台,使得动线流畅简单,主卧套间,面积大,则在门后做了一个展示柜,左侧墙体依旧使用一整排内嵌式衣柜,与吊顶平齐,增加美观性,节约空间。主卫内依旧放置双洗手台盆,连接了马桶后的台面,使的空间更流畅。
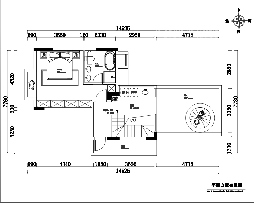
户型图


户型图


厨房

楼梯

书房

客厅

卧室





京公安网备11010502040911