110㎡三居现代简约风格国博新城
发布时间:
2025年09月26日
小区:国博新城 面积:110㎡ 户型:三居 风格:现代简约风格
设计说明
根据客户的要求,空间布局简洁流畅,重点在室内的收纳空间上。色彩选择时以中性色为主调,白色和木色,还有少量低饱和度进行点缀,营造了宁静但是不失活力的氛围。餐厅为了节省原本不大的面积,选择了柜体卡座搭配餐桌,留出了过道。电视柜在保证收纳的同时也做了造型,提升了美观程度。选择灯光时设计注重了简约,以隐藏式光源与顶灯提升了空间的明亮。给业主打造了舒适、高效且经久耐看的居住环境。
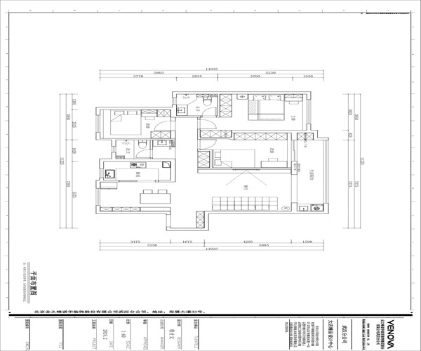
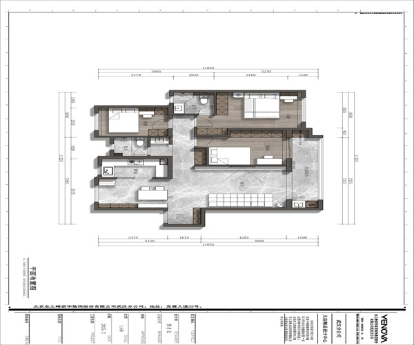
户型图

户型图


客厅


餐厅





京公安网备11010502040911