150㎡四居中南山锦花城
发布时间:
2019年04月11日
小区:中南山锦花城 面积:150㎡ 户型:四居 风格:
设计说明
本文案业主是一对活泼性格极好的年轻大学教师。对于房屋有这独特的眼光和理解。
业主平日很喜欢现代简约装色系的家具装饰品。都市忙碌生活,更多的人喜欢的一个安静,祥和,看上去明朗宽敞舒适的家,来消除工作的疲惫,忘却都市的喧闹整体感的衬托所以整体家居的色彩以高雅的大理石和胡桃木的护墙板。以及硅藻泥做的山水画来烘托整个家的氛围。也因此奠定了全屋的定制亮色系为整个家的氛围做伏笔。过深思熟虑后经过创新得出设计和思路的延展,将设计的元素、色彩、照明、原材料简化到最少的程度。注重生活品位、注重健康时尚、注重合理节约
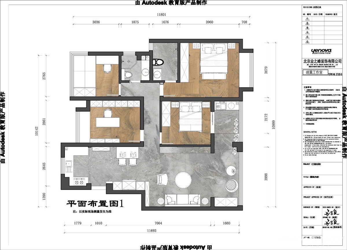
户型图

卧室


客厅



玄关

书房

儿童房





京公安网备11010502040911