180㎡四居法式复古中海寰宇天下
发布时间:
2025年11月21日
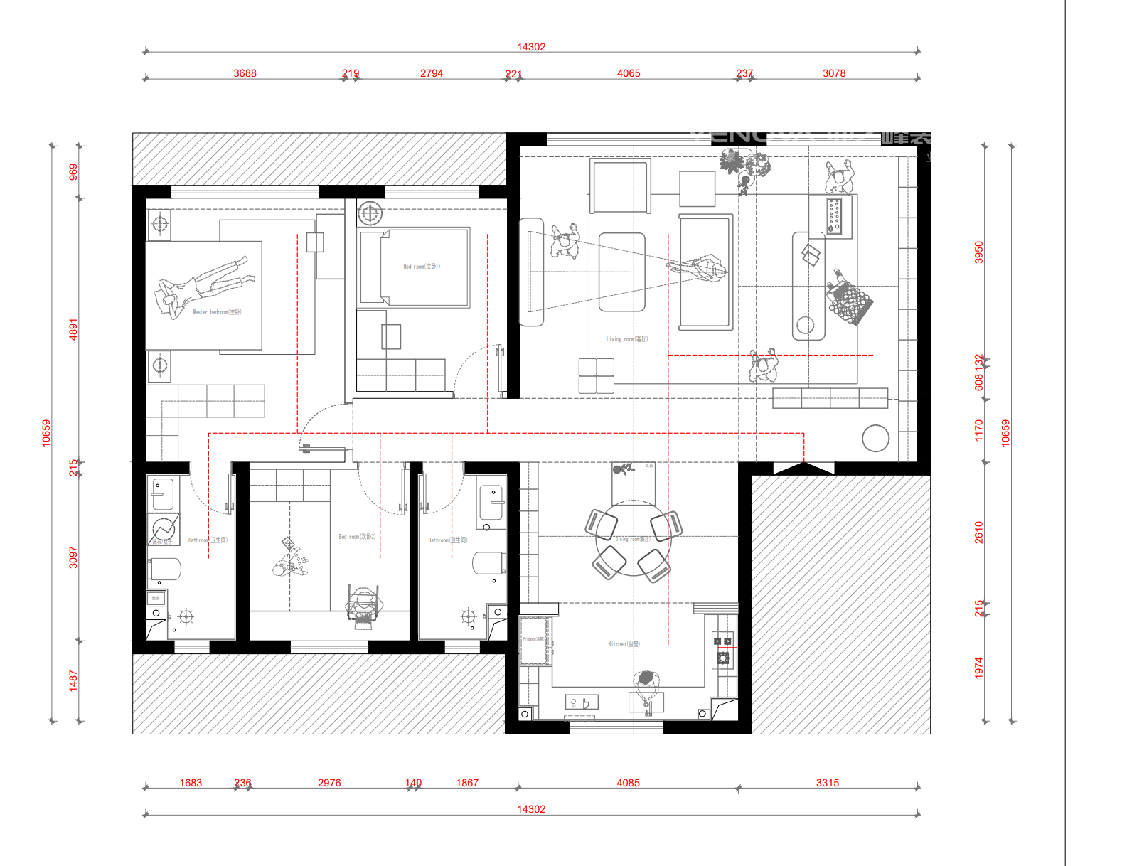
小区:中海寰宇天下 面积:180㎡ 户型:四居 风格:法式复古
设计说明
中海寰宇天下 180㎡法式复古,以复古雕花、艺术软装为核心,融合暖棕复古色调与精致布局,打造典雅浪漫的法式居所。
户型图

次卧室


大厅




休闲区

壁挂炉
卫生间

玄关

厨房

主卧室





京公安网备11010502040911