248㎡四居华润悦府
发布时间:
2019年03月08日
小区:华润悦府 面积:248㎡ 户型:四居 风格:
设计说明
本套案例走的是现代美式的路线,在进行本案例的时候,出现很多难题,美式风是一种大气而不失文化感的风格,其性格象征自由,崇尚自由。也是一种生活方式,是一种随意不羁生活方式,不经意之间就是一种休闲式的浪漫户型。
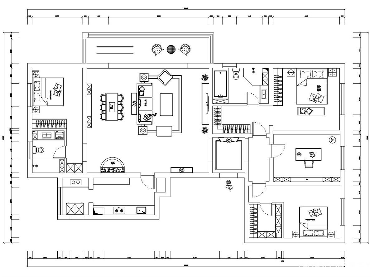
户型图

客厅




卧室



玄关


本套案例走的是现代美式的路线,在进行本案例的时候,出现很多难题,美式风是一种大气而不失文化感的风格,其性格象征自由,崇尚自由。也是一种生活方式,是一种随意不羁生活方式,不经意之间就是一种休闲式的浪漫户型。









