140㎡三居新中式风格公园5号
发布时间:
2019年03月08日
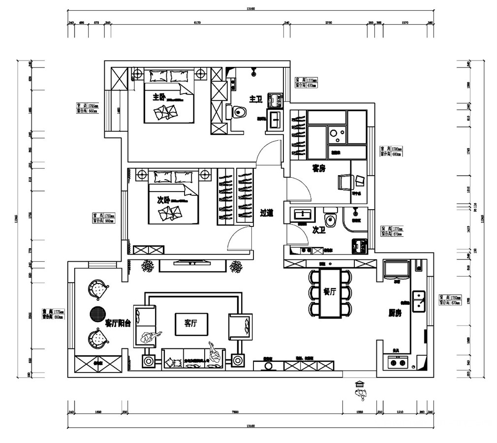
小区:公园5号 面积:140㎡ 户型:三居 风格:新中式风格
设计说明
方案为整个设计风格为新中式,水墨黑沉稳大气,与山水元素装饰相映成趣;朱砂红吸纳了朝阳最富生命力的元素,它贯穿整个空间,使空间揉进了民族血液中最细腻的情感主要包括陶瓷工艺品,玻璃摆件等根据所想要表达的气质进行选择,利用装饰品的个性化造型和完美曲线的质感给予整个空间带来不一样的视觉感受。
户型图

客厅




餐厅

卧室

玄关





京公安网备11010502040911