198㎡四居铂悦山
发布时间:
2019年02月16日
小区:铂悦山 面积:198㎡ 户型:四居 风格:
设计说明
中式追求的是一种简约而实用的美感,不需要过多刻意的堆砌,本案保持中式美学的精髓,稳重的实木家具、优雅柔和的灯光配以质朴的素墙…从整体到细节,古朴大气,层次丰富,诉说着内敛而又端庄雅致的东方格调,色彩上或浓重或淡雅,都无需繁多,均衡与美感,恰到好处的呈现出厚实的东方文化气质。
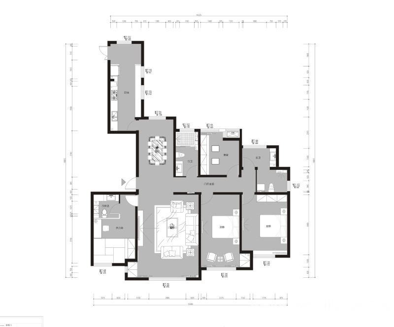
户型图

客厅



餐厅

卧室





京公安网备11010502040911