135㎡四居万科城市之光
发布时间:
2018年12月26日
小区:万科城市之光 面积:135㎡ 户型:四居 风格:
设计说明
方案为整个设计风格为轻奢,简约的纯色空间,柔和、安静,呈现宁静雅致的氛围,总能在不经意间触动人心,精致的细节和充满艺术气息的软装陈设,营造出富有灵魂的艺术境界。空间装饰多采用简洁的直线与曲线结合,体现了当下都市年轻人追求时尚,精品的生活理念
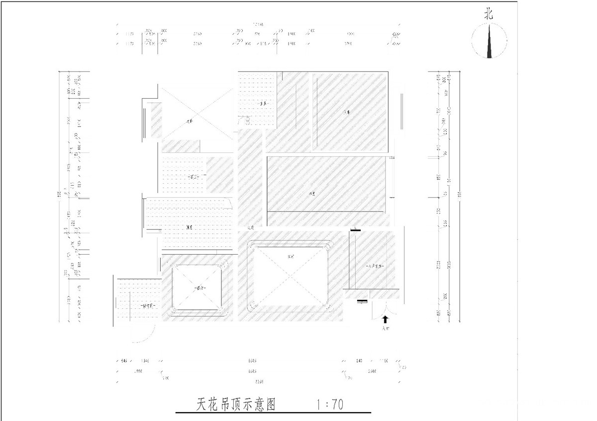
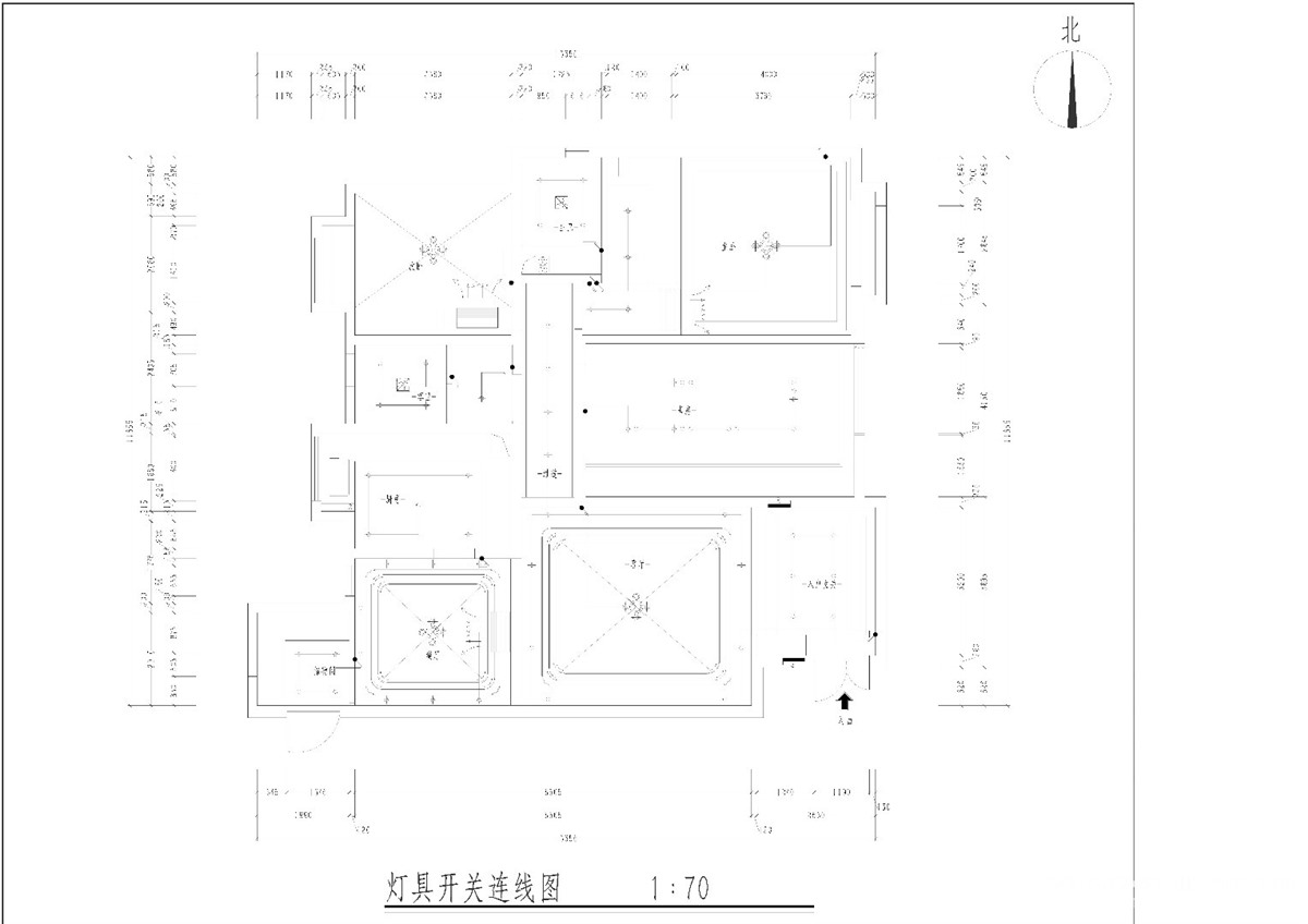
户型图

客厅








餐厅

卧室

玄关





京公安网备11010502040911