177㎡四居东方米兰国际城
发布时间:
2018年12月26日
小区:东方米兰国际城 面积:177㎡ 户型:四居 风格:
设计说明
美式风格主要植根于欧洲文化,这也造就了其自在、随意的不羁生活方式,没有太多造作的修饰与约束,不经意中也成就了另外一种休闲式的浪漫,它有着欧罗巴的奢侈与贵气,但又结合了美洲大陆这块水土的不羁,这样结合的结果是剔除了许多羁绊,但又能找寻文化根基的新的怀旧、贵气加大气而又不失自在与随意的风格。美式家居风格的这些元素也正好迎合了时下的文化资产者对生活方式的需求,即:有文化感、有贵气感,还不能缺乏自在感与情调感。
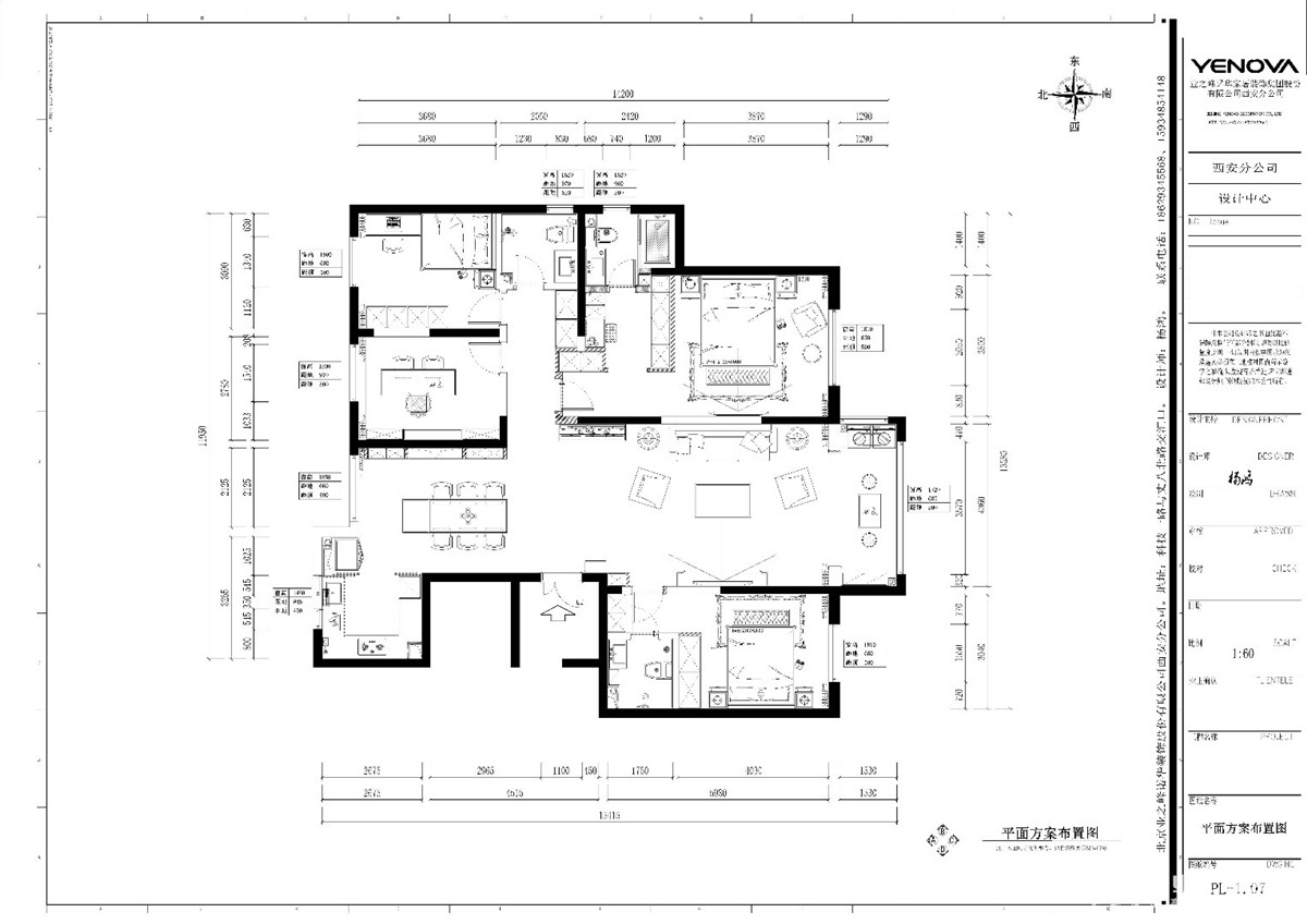
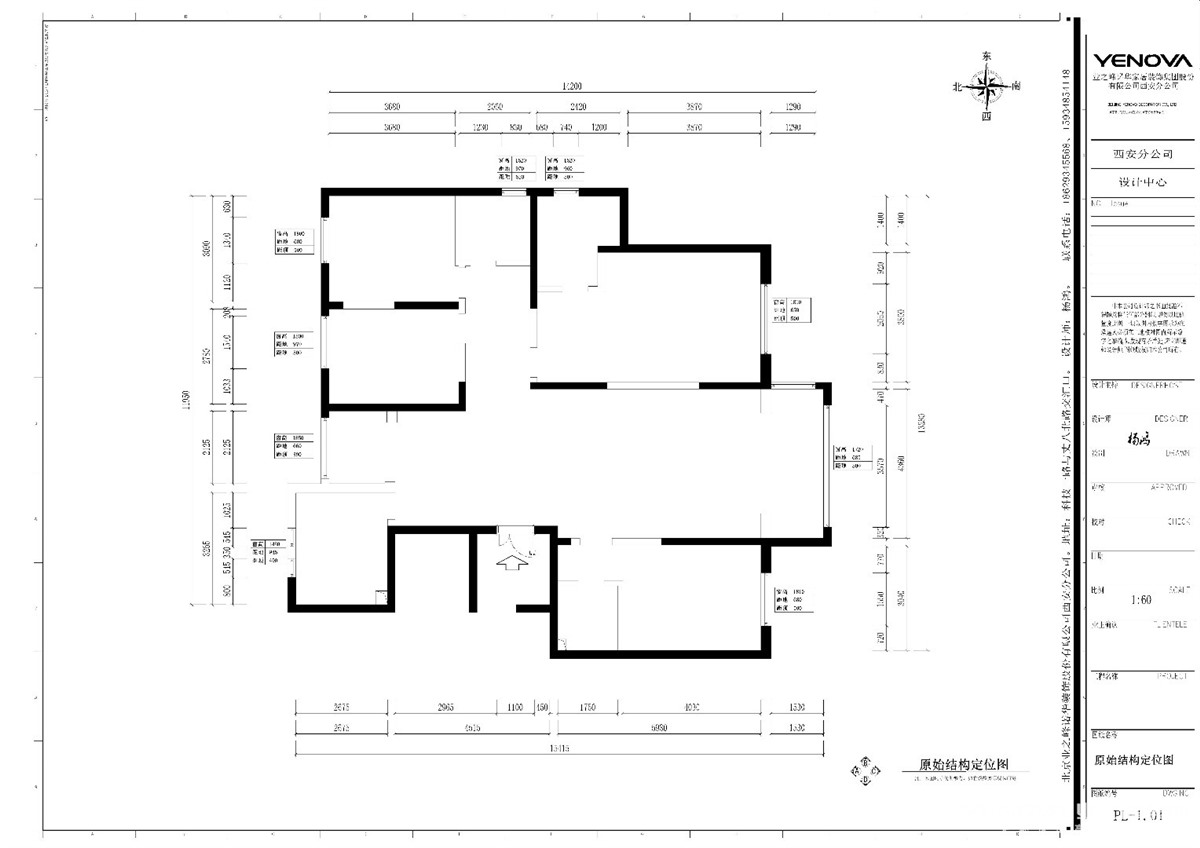
户型图

客厅





卧室

餐厅

书房





京公安网备11010502040911