137㎡二居现代简约风格成都花园
发布时间:
2018年11月17日
小区:成都花园 面积:137㎡ 户型:二居 风格:现代简约风格
设计说明
本案将风格定位在现代简约.在内部空间的布置上,设计师以能减则减,能删则删为原则.去除一些不必要的装饰和点缀,留下一个整齐通透的空间,少了份拥挤郁闷,多了份简约清新.整体色系以素色为主,刚硬的线条,让空间显得简单利落,适当加入一些自然元素和精美饰品,成功营造出温馨 清雅的生活氛围。
客厅非常大气,电视墙运用石材,凸显业主的品味。一切从功能出发,讲究造型比例适度、空间结构图明确美观,强调外观的明快、简洁。体现了现代生活快节奏、简约和实用,但又富有朝气的生活气息。
卧室用简约的手法进行室内创造,删繁就简,去伪存真,以色彩的高度凝练和造型的极度简洁,在满足功能需要的前提下,将空间、人及物进行合理精致的组合,用最洗练的笔触,描绘出最丰富动人的空间效果。
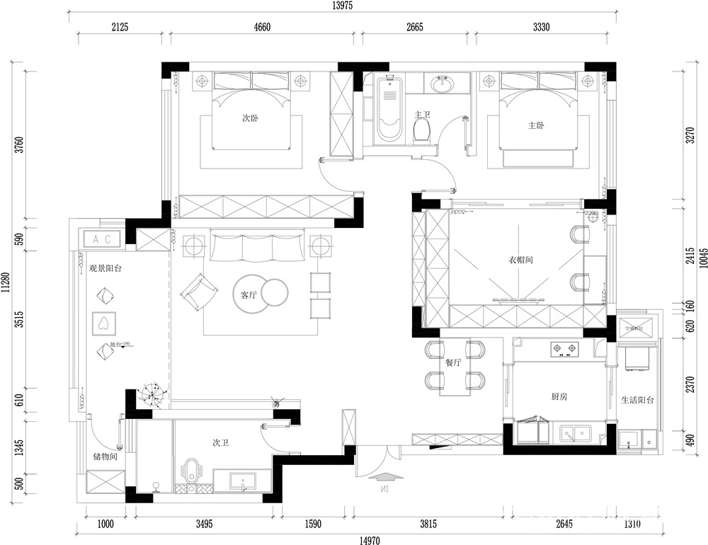
户型图

卧室


衣帽间

客厅


餐厅





京公安网备11010502040911