183㎡别墅美式风格保利两河森林
发布时间:
2018年11月17日
小区:保利两河森林 面积:183㎡ 户型:别墅 风格:美式风格
设计说明
本案例为业之峰峰翼高端工作室罗雯老师的美式风格作品。随着人们生活水平的不断提高,惬意的生活方式就成了大家梦想的天堂。
自然万物都有四季,华丽后该如何转身呢?......寻求一方净土。雨露与阳光相互渗透,山水相间,依山傍水,水连着山,山傍着水,鸟语花香,青山绿水这是喧嚣、纷繁的城市人们所向往的心灵栖息的地方。时代的不断发展,资源不断的被开发,能寻得一方净土尤为珍贵。当你迷茫、惆怅时,有这样一方净土必定豁然开朗。
每当听《莲语的呢喃》总会感觉得到心灵的回归。让心灵回归自然,让爱回归原生态,用心去眺望你的一方净土。
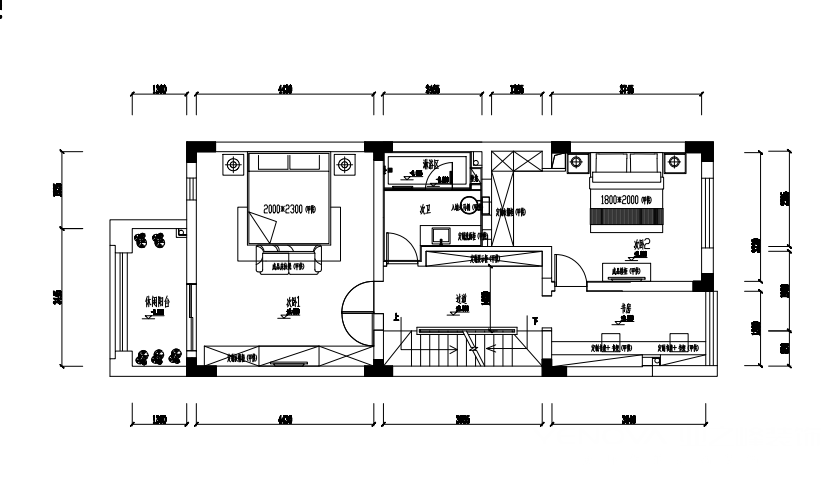
户型图

休闲区

客厅


卫生间

书房

衣帽间

卧室



楼梯

玄关





京公安网备11010502040911