137㎡四居现代简约风格北大资源颐和翡翠府
家的意义因人而异,一万个人心中有一万个理想的家,如何万中选一实现业主心中的一个温馨的家。设计师结合业主的生活习惯、兴趣爱好、具象需求等。实现了一个为业主量身打造的家,让家这个心灵的港湾圆满成真。
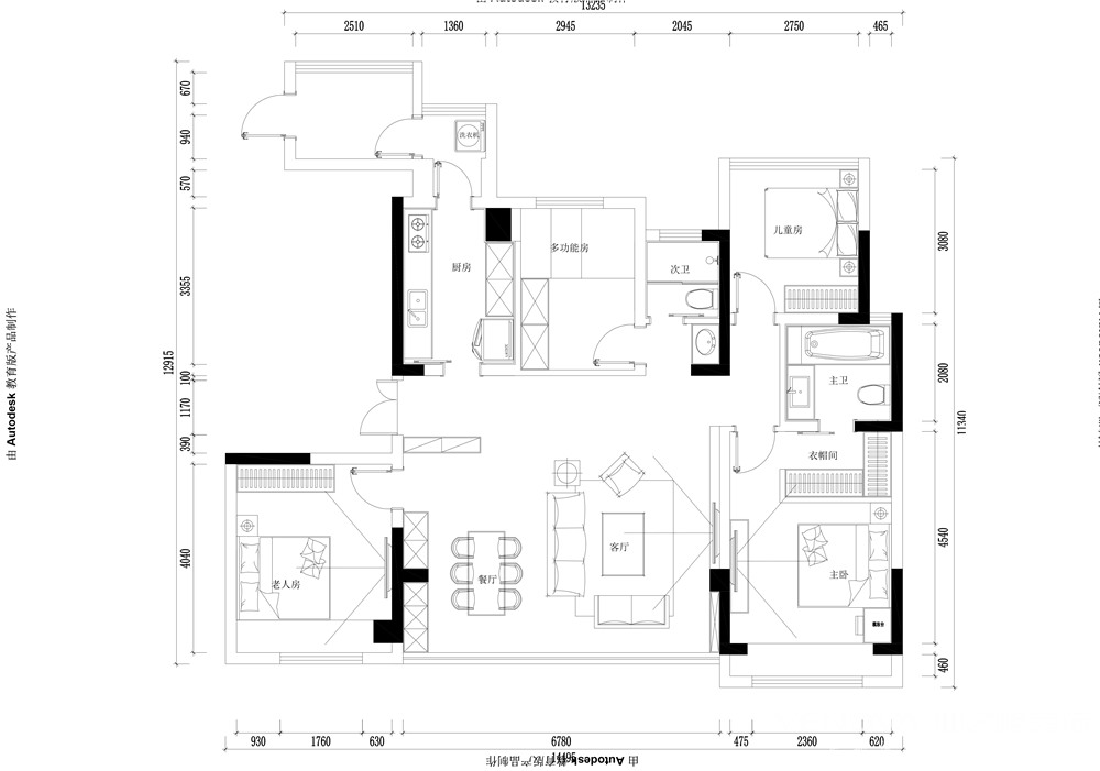
首先,入户到旁设置矮柜,增加一个半围合空间,是原来空荡的空间增添一个小小的玄关,既美观又增其功能性;
第二,客厅、餐厅没有完全的隔断,并且丢弃原始推拉门,这个大胆的设计,尽可能的利用到了边际空间,是整个空间宽敞透亮,其次没有隔断的空间设计无形中也促进了家人间的交流,拉近彼此的距离。在电视背景墙的设计上,采用非常大气的设计,使用整面大理石装饰,既显大气、宽敞,又易于清洁,与空间的划分也是相得益彰。因为过梁的缺陷,客餐厅吊顶采用筒灯组合的设计,使顶面整体、温和。
第三,厨房改造,原始厨房偏窄,因而给人视觉效果较为狭长;设计师采用将厨房空间扩大,减小多功能房间空间的方法,使得两个空间兼顾,既不浪费也不狭窄。
第四,原始主卧室大气,宽敞,但是卫生间门直对床头;设计师考虑到风水问题,设计衣帽间隔档厕所门冲床头的弊端,而且又有一个较为整体的衣帽间,使空间充分利用。柜体以白色为主,以线条做变化,加上木质地板,整个感觉简单又不失乏味。
第五,多功能房结合业主个人喜好,设计为游戏休闲区域,女主人下午可以和朋友悠闲的在榻榻米上喝茶聊天,在墙面规划投影布幕盒,聊天天看电影一体化;而且设计游戏区域,男主人可以和朋友打游戏,娱乐都规划为一体,也可以促进家人间的交流。
结语:家的意义或许因人而异,但回归本质,皆是一种令人西南的情愫,饱含不期而遇的温暖和生生不息的希望。










京公安网备11010502040911