150㎡三居现代简约风格塔子山壹号
发布时间:
2018年11月17日
小区:塔子山壹号 面积:150㎡ 户型:三居 风格:现代简约风格
设计说明
本案为现代风格案列,以简洁明快的设计风格为主调,实用是现代简约风格的基本特点。不仅注重居室的实用性,而且还体现出了现代社会生活的精致与个性,符合现代人的生活品位。
全面考虑,功能方面,客厅体现了主人地位,品格,也是交友娱乐的场合,电视背景墙采用主要装修材料以木材,大理石为主,以木材的优美含蓄,大理石的大气轻奢来装饰。既大方沉稳,配上顶部照下来的灯光,整个电视背景墙把客厅提升起来。餐厅是家居生活的心脏,不仅要美观,更重要的实用性,整体性。餐厅的灯光很重要既不能太强又不能太弱,灯光则以温馨和暖的黄色为基调,顶部做了简单的吊顶。墙面贴了局部壁纸,在餐桌的墙面上作了一个台面,可以摆放一些饰品,可以增加以下餐厅的情调。
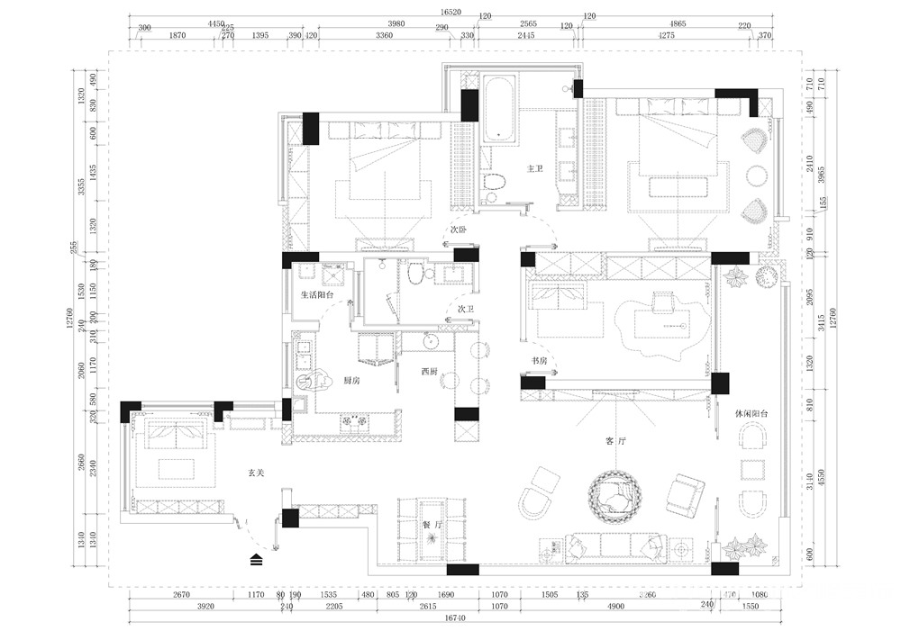
户型图

卫生间

客厅



卧室

厨房

餐厅

休闲区

书房

玄关





京公安网备11010502040911