134㎡三居福星惠誉汉阳城
发布时间:
2018年08月05日
小区:福星惠誉汉阳城 面积:134㎡ 户型:三居 风格:
设计说明
本案位置位于拦江路地铁口,交通十分便利,总楼层较高,视野十分开阔。业主是一对中年夫妻,由于比较青睐一些国外的设计元素,在这里综合她们的喜好,给他们定位了这几年很流行的轻奢风格。原始户型入户就是一个门厅,正面和侧面利沿墙体做了鞋柜和换鞋区挂衣区形成入户门厅,既能让入户门厅成为一个亮点又能充分利用储物空间。客餐厅利用吊顶做出区域划分,餐厅对应圆桌做了圆顶,更能体现美好的寓意和大气。简单的沙发,线条简约流畅,玻璃餐桌和金属支脚的餐椅,造型简单时尚,再搭配孔金属质感的吊灯,时尚华丽的轻感不言而喻,客餐厅墙面使用米灰色涂料,既能凸显它的高级质感又能中和金色金属带来的华丽冰冷感,体现出空间的低调奢华感。卧室过道第一个房间是儿童房,结合小孩的喜好用了轻柔的水蓝色,给孩子一个独立的学长空间。主卧造型比较简单,没有过多的装饰,步入式衣帽间,满足柜体量和梳妆台,再进入主卫。主卧阳台打通并入主卧做了一个套间,开放式书房满足主人学习工作又比较安静隐秘,整个大套间使用起来非常舒服,充分体现了主人的家庭地位。
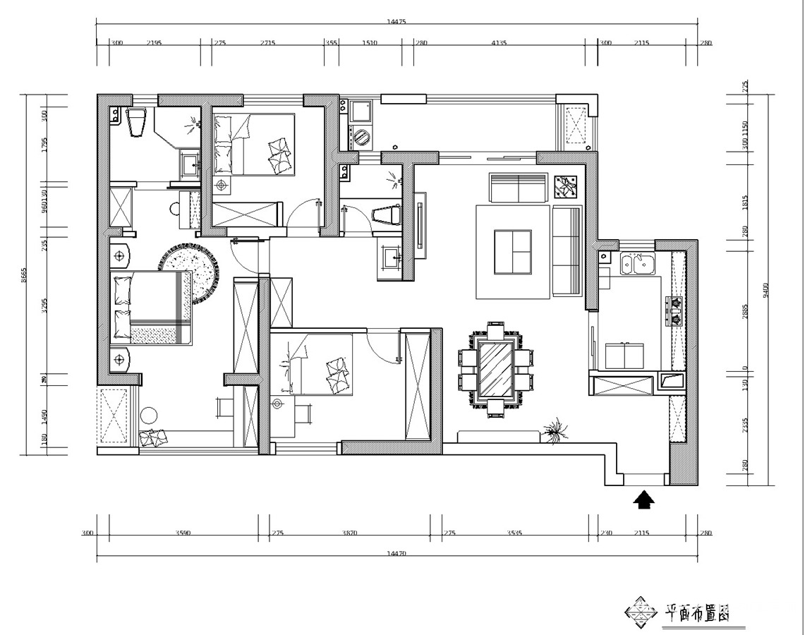
户型图

客厅



餐厅

卧室





京公安网备11010502040911