010-84934479
扫码快速拨号 >
扫码快速拨号

194㎡四居绿地隆悦公馆

发布时间: 2018年02月21日
小区:绿地隆悦公馆 面积:194㎡ 户型:四居 风格:
设计说明

欧式风格的装修更注重庄严肃穆、优雅气质,能够将欧式风格的繁复与复古风格的奢华完美沟通。       

本案设计注重装饰效果,用室内陈设品来增强文脉特色, 运用家具及陈设品来烘托室内环境气氛。深木色、米咖色是此设计的主色调、少量深蓝色糅合,使色彩看起来明亮


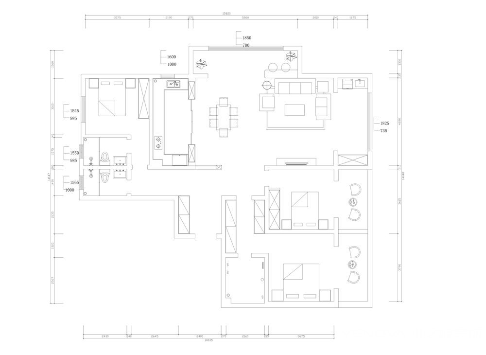
户型图
客厅
餐厅
本案设计师
业之峰专业设计师
我家装成这样多少钱?
相关案例推荐
报价计算器
免费量房
免费设计
回到顶部