205㎡平层金地芙蓉世家
发布时间:
2017年02月09日
小区:金地芙蓉世家 面积:205㎡ 户型:平层 风格:
设计说明
本案原始户型南北通透,方正采光良好,房间开间进深合理,双明卫生间但无干湿分离,客餐厅一体设计开阔大气但无明显玄关区,餐厨结合紧密但厨房面积小每个卧室也根据主人的不同特点均作了相应的设计,尤其小孩房,考虑到给小孩一个活泼、有趣味的专属空间,设计师打破常规思维,将占地方的床移到一角,巧妙地将衣柜和书桌之间做成假的飘窗台面,形成即可当学习区又可娱乐区的区域,满足实用功能的家具也是整个空间的主角,公共区域以开放式为设计主轴,略带中式元素的木质家具色泽与肌理属于偏柔和的款式,因此大量运用在空间中,既不感觉到压迫甚至沉重,而是能在里头感受到一阵质朴与心灵受到回归自然的感受。同时设计师也考量到色彩平衡搭配,适度地在家具选用上加入了些传统纹样的布艺、并运用皮质硬包、花格、壁纸、中式挂画等,再一次强调新中式风格,同时也替空间成功制造出一个有传统文化底蕴而又不守旧的时尚家庭居所。
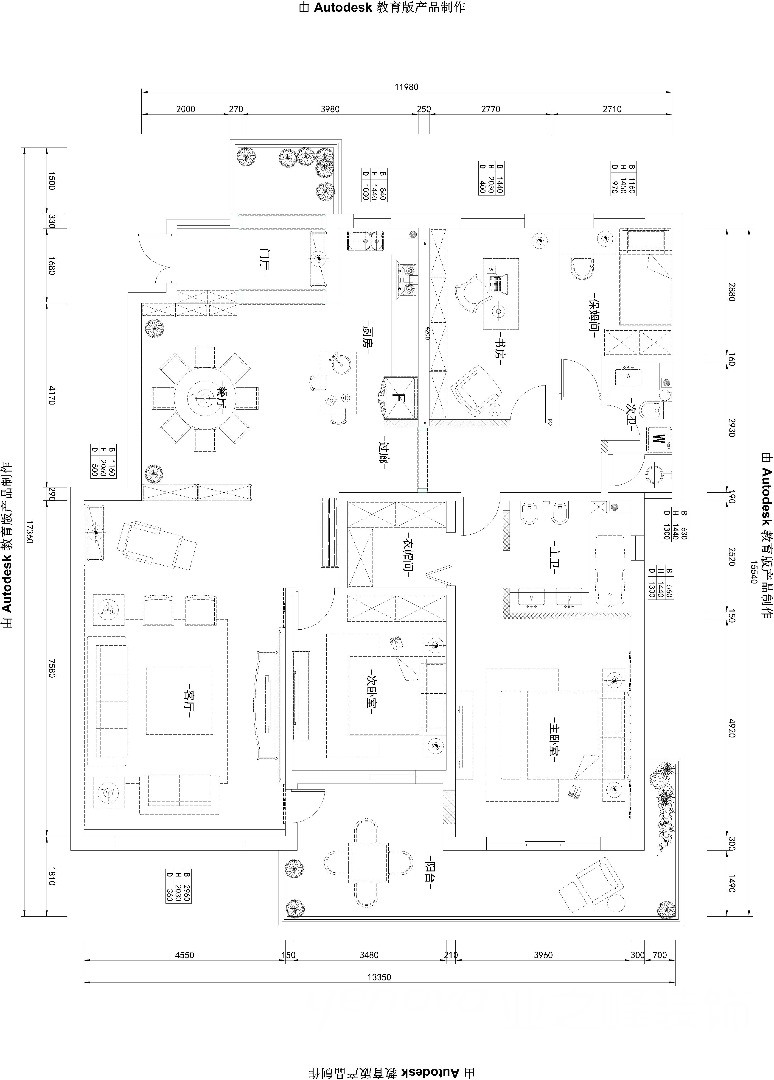
户型图

客厅



玄关


休闲区

卫生间

书房





京公安网备11010502040911