010-84934479
扫码快速拨号 >
扫码快速拨号

118㎡平层现代简约风格华侨城嘉陵江天

发布时间: 2025年10月15日
小区:华侨城嘉陵江天 面积:118㎡ 户型:平层 风格:现代简约风格
设计说明
无论是设计语言,还是空间建构,我们都在试图营造一个新的叙事结构。 在隐藏着静谧的空间语言之中,生活与爱好充分交融,深入体验,皆是轻叩五感的舒适。
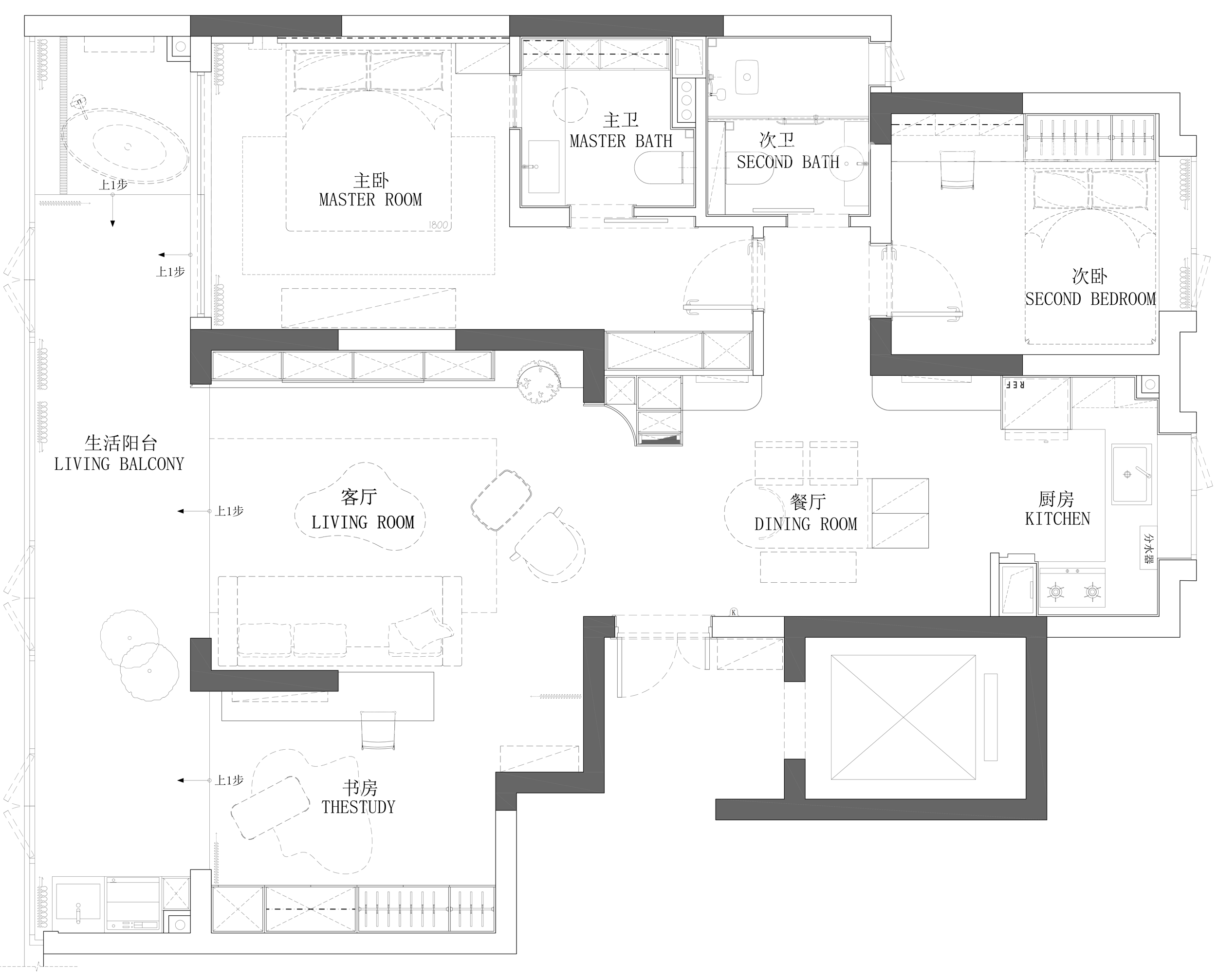
户型图
卧室
餐厅
大厅
客厅
本案设计师
范宁
高级设计师
我家装成这样多少钱?
相关案例推荐
  • 319㎡平层现代简约风格金辉碧桂园雅居乐·麓铭府
    查看详情
  • 143㎡平层现代简约风格鼎城悦玺
    查看详情
  • 157㎡平层现代简约风格龙湖源著
    查看详情
  • 115㎡平层现代简约风格中建-国玺台
    查看详情
  • 110㎡平层现代简约风格凤凰湾
    查看详情
  • 150㎡平层现代简约风格香港置地云山岳
    查看详情
  • 142㎡平层现代简约风格雁熙云著
    查看详情
  • 116㎡平层现代简约风格麋家桥小区
    查看详情
  • 129㎡平层现代简约风格翠景台
    查看详情
  • 170㎡平层现代简约风格雅居乐御宾府
    查看详情
  • 120㎡平层现代简约风格公园大道
    查看详情
  • 120㎡平层现代简约风格中央公园悦府
    查看详情
  • 160㎡平层现代简约风格龙湖紫云台
    查看详情
  • 106㎡平层现代简约风格北京城建龙樾生态城
    查看详情
  • 120㎡平层现代简约风格首地江山赋
    查看详情
  • 90㎡平层现代简约风格瀚学融府
    查看详情
  • 196㎡平层现代简约风格首创天阅嘉陵
    查看详情
  • 165㎡平层现代简约风格金辉长江铭著
    查看详情
  • 180㎡平层现代简约风格和达棠颂
    查看详情
  • 展开
报价计算器
免费量房
免费设计
回到顶部