170㎡平层中古风格招商云兰
发布时间:
2025年10月18日
小区:招商云兰 面积:170㎡ 户型:平层 风格:中古风格
设计说明
本案的风格是简约中古风。本案三代之家,一个小孩,一个老人还有夫妻二人,喜欢简约大气带一些胡桃木色调的装饰风格,所以最总选择简约中古风。简约中古风以 “删繁就简,取意传神” 为核心,在传统中式风格的基础上,去除繁琐的造型及装饰,同时融入现代简约设计的利落线条与实用功能,打造出沉稳,有意境的空间。简约中古风的色彩以 奶白,奶咖,胡桃木 为基调,既满足现代生活的功能需求,又营造中式空间的雅致空间。软装是简约中古风 “点睛” 的关键,遵循 “少而精,意相融” 的原则,整个空间动线流畅,色调温馨
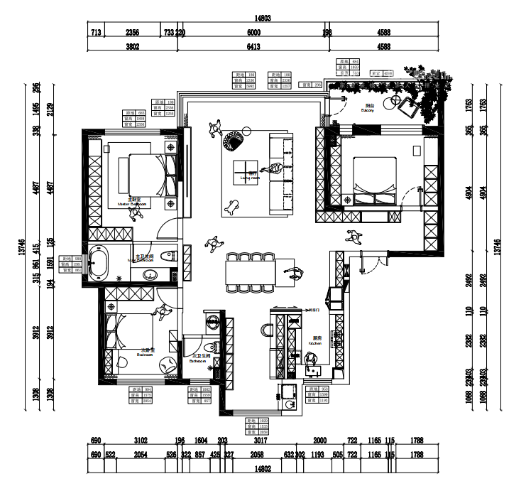
户型图

卧室



餐厅

客厅







京公安网备11010502040911