110㎡平层中古风格新山和悦
发布时间:
2025年10月15日
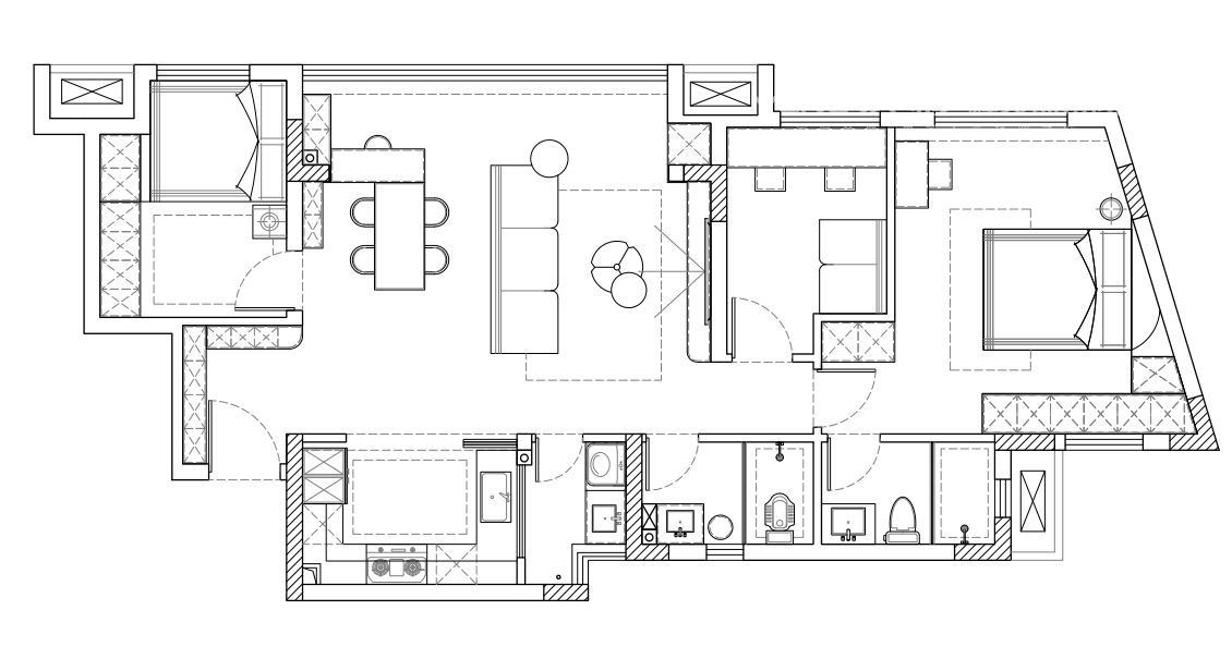
小区:新山和悦 面积:110㎡ 户型:平层 风格:中古风格
设计说明
本案是一套110平方米的现代中古风格案例,是将现代装饰元素和木纹质感相结合的搭配。精致的家具和装饰品都别具特色,让整体空间效果更加增添了浪漫怀旧的感觉。室内色彩主要使用了暖色调的浅米色、焦糖棕等,再增加了黑色元素作为局部的点缀,营造出温馨而舒适的氛围。空间布局上则是利用了原有户型横厅结构的优势,结合功能需求的考虑,去进行整体户型结构改造,让空间更加的灵动。最后才呈现出一套让人心生暖意的室内空间效果。
户型图

客厅


餐厅






京公安网备11010502040911