北京
【切换】
整屋案例
家居美图
实景案例
装修现场
装修攻略
无数据
搜索
010-84934479
扫码快速拨号 >
扫码快速拨号
首页
效果图
设计师
装修现场
装修攻略
品质保障
了解业之峰
当前位置:
首页
装修图库
案例相册
93㎡三居意式极简中交锦上
发布时间: 2025年10月19日
小区:中交锦上
面积:93㎡
户型:三居
风格:意式极简
设计说明
客厅整体设计通过材质、色彩、功能的巧妙融合,在现代简约风格框架下,展现出适配生活的个性化客厅空间,实现美观与实用的双重价值。
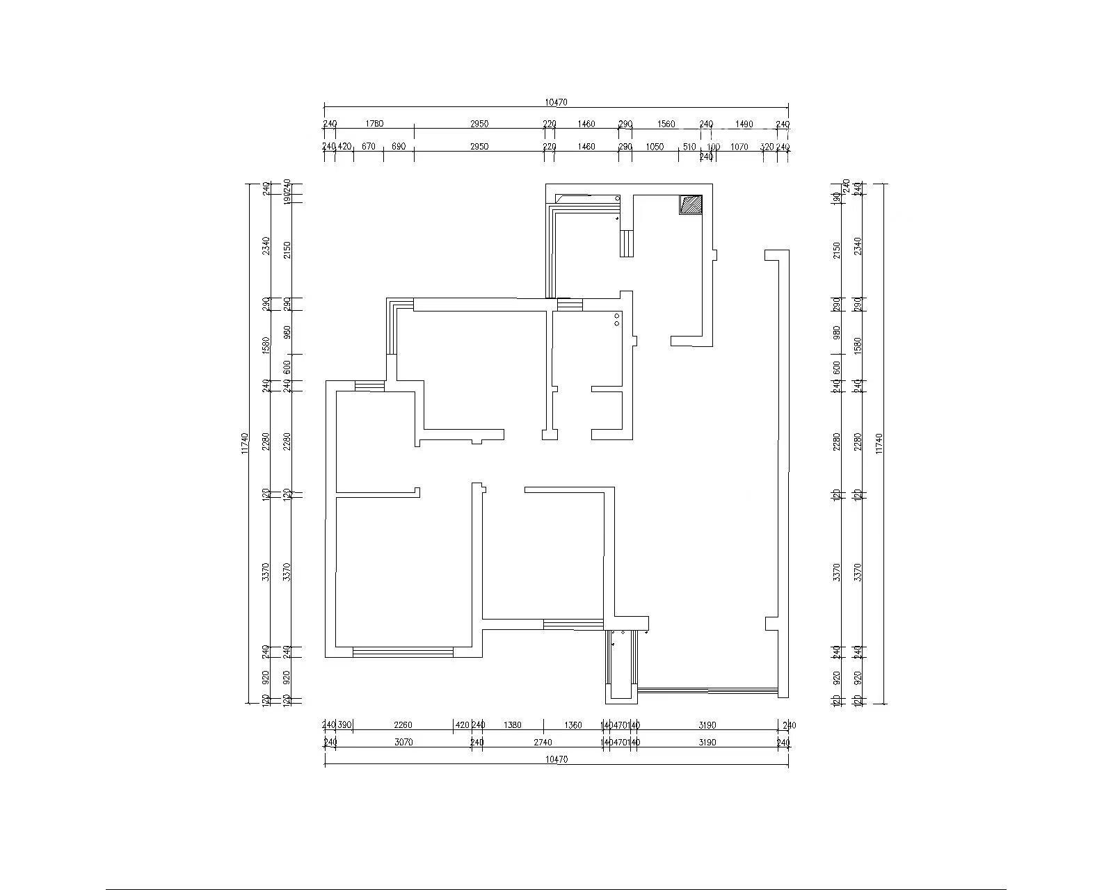
户型图
玄关
主卧室
次卧室
餐厅
客厅
设计说明
户型图
玄关
主卧室
次卧室
餐厅
客厅
本案设计师
任若愚
高级设计师
免费咨询
我家装成这样多少钱?
㎡
获取报价
相关案例推荐
130㎡三居意式极简香溢紫郡
查看详情
200㎡三居意式极简高科麓湾
查看详情
136㎡三居意式极简建业·龙悦城
查看详情
128㎡三居意式极简吾悦首府
查看详情
120㎡三居意式极简花海茗著
查看详情
128㎡三居意式极简兴城人居鎏林语
查看详情
101㎡三居意式极简保利西棠和煦
查看详情
85㎡三居意式极简优品尚城
查看详情
147㎡三居意式极简望江府
查看详情
102㎡三居意式极简静苑小区
查看详情
130㎡三居意式极简万达御府
查看详情
140㎡三居意式极简国茂府
查看详情
140㎡三居意式极简德贤公馆
查看详情
114㎡三居意式极简金地艺华里
查看详情
145㎡三居意式极简绿城水西云庐
查看详情
130㎡三居意式极简金地御峯
查看详情
135㎡三居意式极简龙湖天璞
查看详情
79㎡三居意式极简天保上城观景
查看详情
145㎡三居意式极简黄河家园
查看详情
展开
报价计算器
免费量房
免费设计
回到顶部