143㎡平层原木风格海棠三章
发布时间:
2025年10月22日
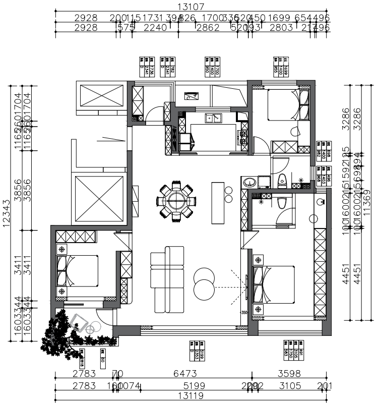
小区:海棠三章 面积:143㎡ 户型:平层 风格:原木风格
设计说明
居住需求:本案是一对新婚小夫妻的爱居,男主是大学教授,经常在外地参加学习,女主近期刚怀孕在家休息,客户委托我想要舒适安逸放松的居家环境,毕竟每天忙于工作,就想着回家进门一瞬间可以感受到松弛,客餐厅是个通厅,我把餐厅,西厨岛台,客厅,咖啡角4个功能融合在了一起,让普通的通厅功能丰富化,一家人在客厅的互动性围合性瞬间拉满,客厅采用了无主灯设计手法,让顶面极简化,灯光氛围层次感凸显,地面采用了800*800的仿木地板瓷木砖,让温馨舒适度更高,公区收纳采用了混油胡桃木纹色来凸显原木风的质感,电视墙运用去客厅化,用了可移动支架电视让客厅氛围再次松弛感慢慢,休闲,随意,沙发采用多面沙发,下午微风拂过,来杯咖啡再每不过,本户型属于第四代住宅,带一个5平方的露台,跟客厅连贯,让室内室外更好切换,主卧卫生间结构的改造,玻璃砖堆砌的采光窗口,让主卧的自然风体现的淋漓尽致~~~
户型图

卧室


餐厅


玄关

客厅
