179㎡四居北欧风格龙湖花千树
发布时间:
2017年02月09日
小区:龙湖花千树 面积:179㎡ 户型:四居 风格:北欧风格
设计说明
本方案针对的是一个四口之家。一对年轻夫妇,一个小孩,一个老人,主人有国外生活的经验,想打造一个休闲远离都市喧嚣感的居所。
现在的都市人压力很大,回到家希望能够感受到放松,不希望家里太复杂,整体感觉清新雅致,简洁的空间里搭配挂画、花艺、布艺,使空间灵活而有生气,夜幕降临,一盏落地灯的光线即可,让人安静和谐。
由于业主希望以简洁俐落的现代风格打造新居,因此设计师决定打造一个纯淨的生活舞台,让三代同堂的屋主,能够透过挑选家具、家饰,妆点空间的过程,感受共同打造一个家的乐趣。从入户花园到客餐厅,再到卧室,整个空间给人简洁、优雅的气质,演绎出了永恒的经典。整个空间在保持功能和谐的条件下,运用线条轻快的木质家具,保留白色墙面,南北向的推拉门让室外充足的光线穿透房间,显得自然而和谐,柔和的布套沙发和大面积的石材使留白空间富有情感,透露出岁月的沉淀,时光静止,让我们静静享受这份轻松的感觉,微风吹来,阳台飘来阵阵茉莉花香,点燃一盏灯,泡一杯热茶,在家感受这种简单的幸福……岁月极美,在于它必然的流逝。春花,秋月,夏日,冬雪。你若盛开,清风自来。
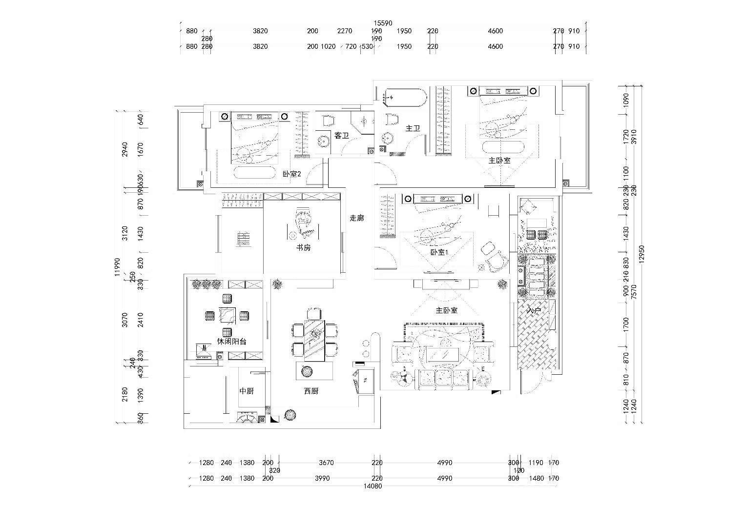
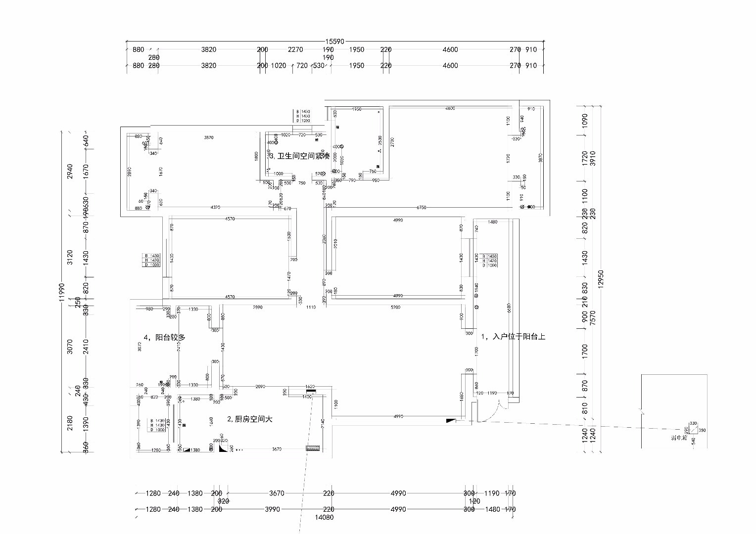
户型图

客厅



厨房

餐厅





京公安网备11010502040911