130㎡四居现代简约风格电视塔小区
发布时间:
2017年02月07日
小区:电视塔小区 面积:130㎡ 户型:四居 风格:现代简约风格
设计说明
本案是一家四口的房子,主人有两个孩子,一个男孩,一个女孩,都在上小学,女主人是从事编辑工作的男主人是企业大老板,每天妈妈就会早早下班,给老公和两个孩子准备丰盛的饭菜,一家人其乐融融的在一起吃饭由于房子格局的设计,餐厅和门厅在一起结合设计,整个风格设计符合男女主人的喜好,是围绕简约风格来搭配的,虽然男女主人在外边工作压力大,当回到家里给他营造一种轻松愉悦的氛围,再加上两个可爱的孩子,一家四口幸福的在这个房子里幸福的生活着。每当看到自己的设计的房子能让客户幸福快乐的生活,比任何的好的言语来的真切。
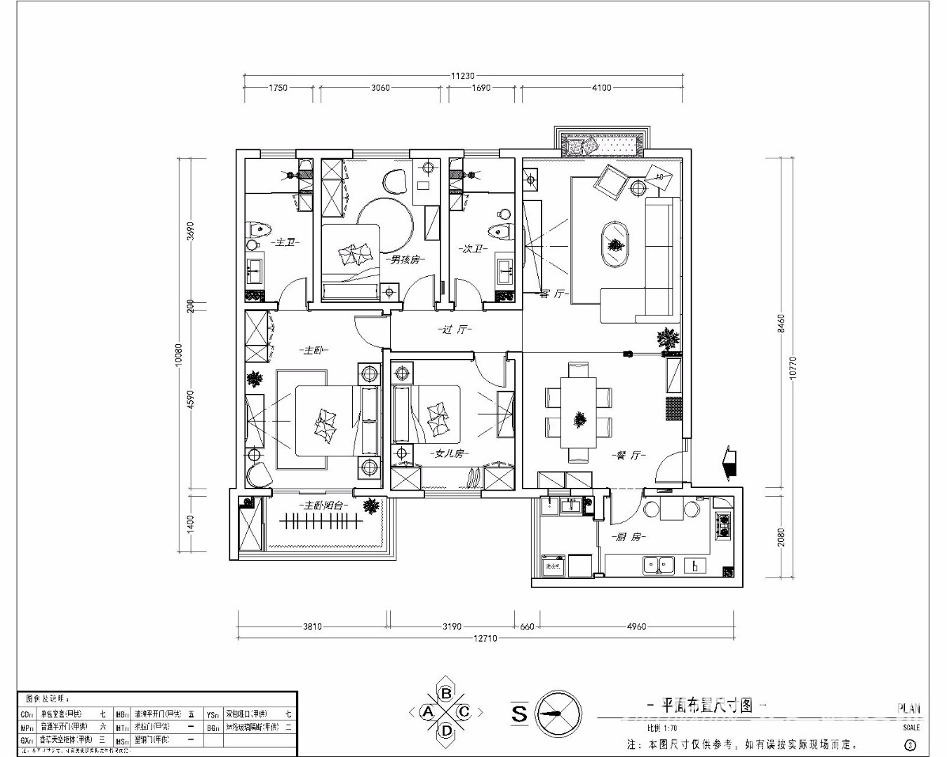
户型图

卧室

餐厅

客厅







京公安网备11010502040911