160㎡三居现代简约风格易道郡-玫瑰公馆
发布时间:
2017年02月07日
小区:易道郡-玫瑰公馆 面积:160㎡ 户型:三居 风格:现代简约风格
设计说明
本案业主是一对中年夫妇,有一个女儿,老人偶尔来家里小住照顾小孩,其中一个老人喜欢玩电脑,所以在老人房专门设置了游戏机,女主人对生活品质有一定的追求,小女儿活泼可爱,男主人经常出差,整个空间氛围轻松愉悦,力求打造一个和谐美好的家氛围,转角阳台做的非常休闲,适合男主人独立去使用,例如,一个人可以在阳台抽个烟缓解一下心情,女主人喜欢做饭偶尔会邀请三五好友,在家里展示一下的她的手艺,在一起聊天聚会,每个人都有他们的专属空间,又有家庭的交流空间,营造一个幸福美满的家庭环境。
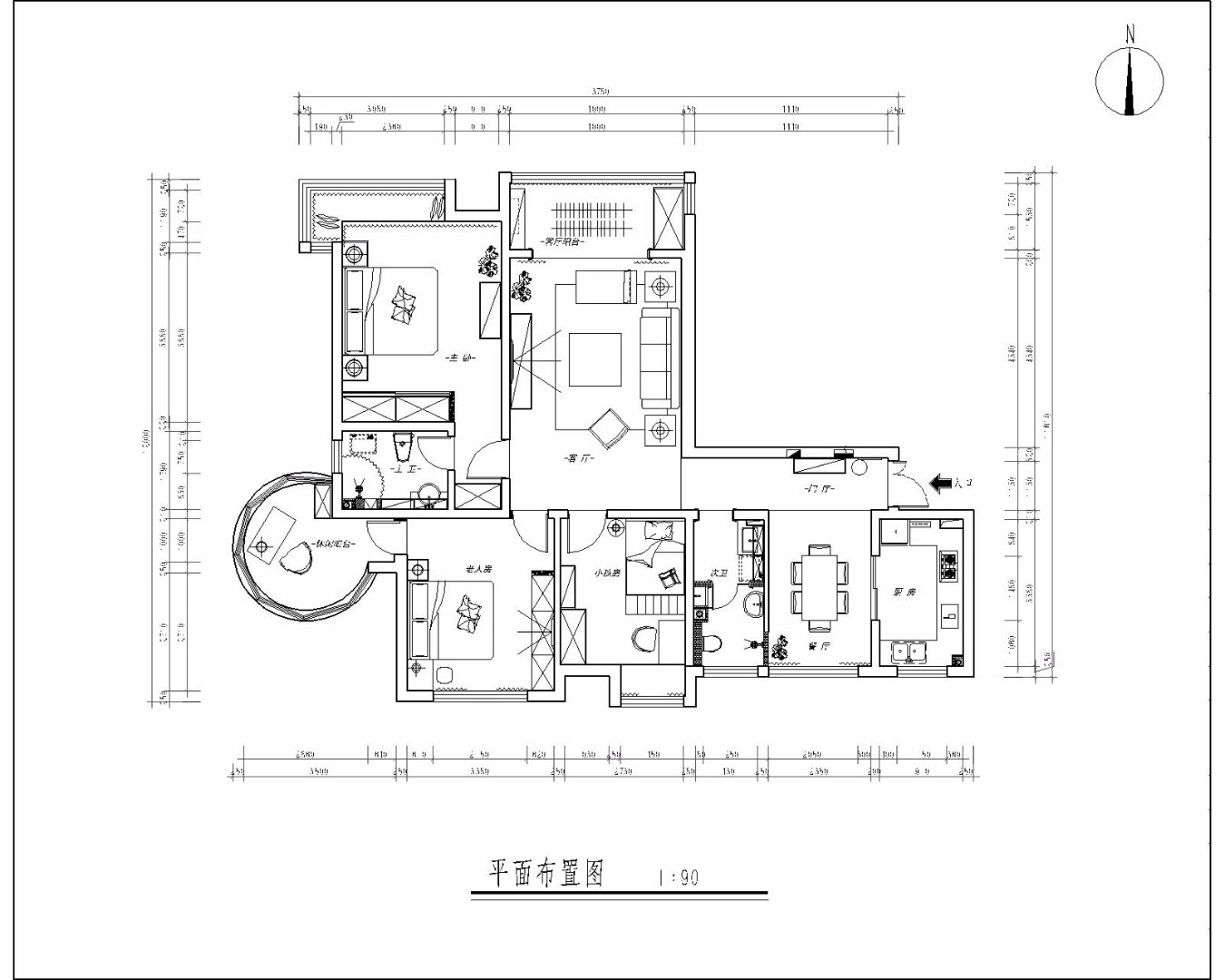
户型图

客厅



玄关

餐厅





京公安网备11010502040911