220㎡新中式风格众美绿都
发布时间:
2016年07月08日
小区:众美绿都 面积:220㎡ 户型: 风格:新中式风格
设计说明
在美式与中式的空间里简洁而不失韵味,选型在美式的基础上,加以中式的古典上做简化,抽其形体以新的材质去演绎,在挂画上立体实物画与写实的中式结合,大色块的色彩与软装的呼应。在米色调的大基调上做到统一,雅致而温馨,静谧而悠然。
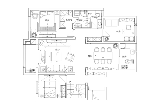
户型图

客厅






卧室


在美式与中式的空间里简洁而不失韵味,选型在美式的基础上,加以中式的古典上做简化,抽其形体以新的材质去演绎,在挂画上立体实物画与写实的中式结合,大色块的色彩与软装的呼应。在米色调的大基调上做到统一,雅致而温馨,静谧而悠然。








