127㎡三居现代简约风格玫瑰湾
发布时间:
2016年07月08日
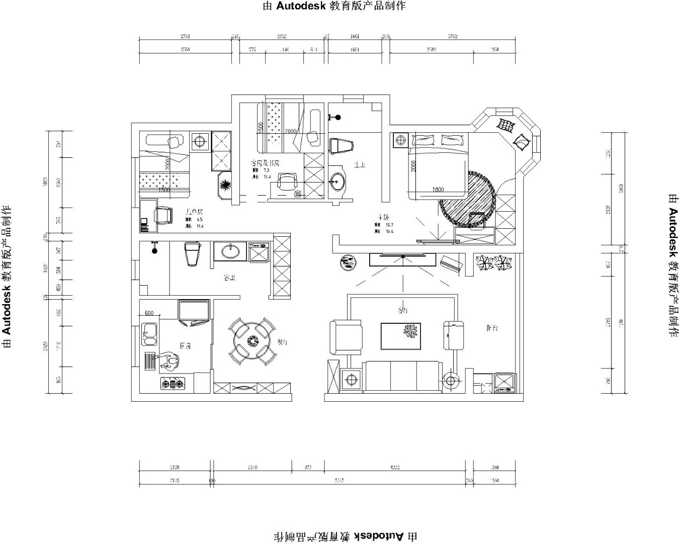
小区:玫瑰湾 面积:127㎡ 户型:三居 风格:现代简约风格
设计说明
华丽与实用相结合,既能满足生活的功能性,又不缺乏美的展示,沙发墙的设计主要以线条为主,柔美的线条使整个空间整洁而不失温馨,壁纸的颜色与沙发的颜色相互呼应,使整体的美感更舒适更有韵味。挂画的点缀 使整体色彩与舒适度大大增加。电视墙运用深色壁纸效果更为突出,两边镶的镜面把整个空间衬托的明亮与干净 。
户型图

卧室

客厅




餐厅

阳台





京公安网备11010502040911