200㎡复式新中式风格宝安江南村
发布时间:
2025年10月16日
小区:宝安江南村 面积:200㎡ 户型:复式 风格:新中式风格
设计说明
根据客户要求以新中式为主,以深棕与浅米为主色调。该户型为复式楼,建筑面积:196㎡,实用面积为:169㎡。客户要求房子以温馨、舒适为主;结合业主有两个儿子的家庭需求,预留亲子互动区。电视墙下方增设开放式分层格,预留部分空间展示孩子的手工作品、奖杯,既契合新中式“留白与点缀”的美学,又能让孩子感受到家庭中的专属存在感。
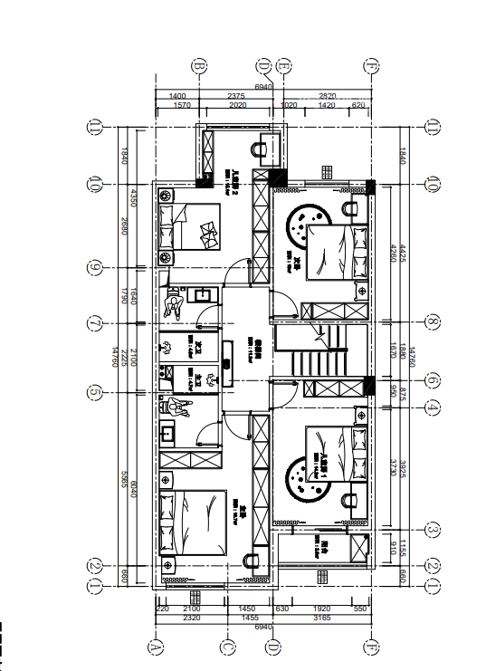
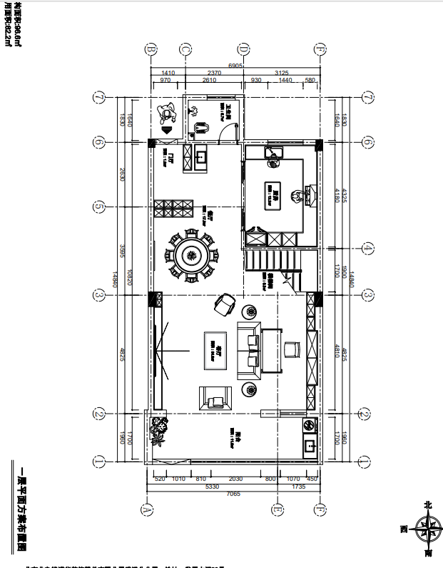
户型图


厨房

主卧室

客厅





京公安网备11010502040911