94㎡三居轻奢风格中交锦上
发布时间:
2025年10月16日
小区:中交锦上 面积:94㎡ 户型:三居 风格:轻奢风格
设计说明
采用意式轻奢风格,以木色与黑白灰为主色调,营造温馨且高级的氛围。通过合理的空间规划与收纳设计,搭配简洁灯具和精致软装,打造出舒适、实用且具质感的居住空间,各区域风格统一,尽显简约大气之美。
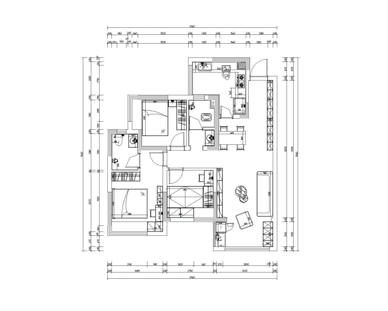
户型图

次卧室


主卧室

客厅




卫生间

厨房

餐厅
