135㎡三居现代简约风格天府公园城
发布时间:
2021年09月19日
小区:天府公园城 面积:135㎡ 户型:三居 风格:现代简约风格
设计说明
此客户为中年夫妻,不喜欢太复杂的造型和设计,同时又需要保证办公和休闲的空间。所以书房和休闲阳台的设计就尤为重要,休闲阳台的茶桌就正好满足了这个需求。客餐厅吊顶走一圈楣线 简单又不失单调。
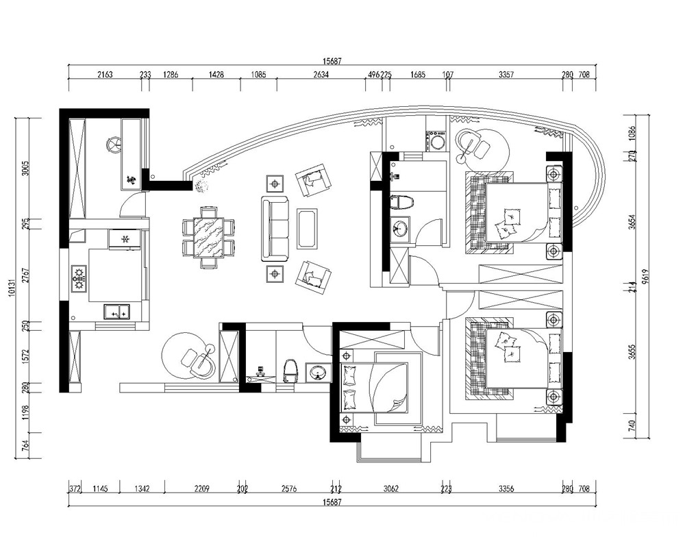
户型图

餐厅

客厅


此客户为中年夫妻,不喜欢太复杂的造型和设计,同时又需要保证办公和休闲的空间。所以书房和休闲阳台的设计就尤为重要,休闲阳台的茶桌就正好满足了这个需求。客餐厅吊顶走一圈楣线 简单又不失单调。



