80㎡二居轻奢风格西城御景
                  发布时间:
                  2021年09月19日
                
 小区:西城御景 面积:80㎡ 户型:二居 风格:轻奢风格
设计说明
 客户为独居男业主,热爱美食,希望厨房空间能更宽敞。方案特意为业主扩大厨房空间,满足业主对烹饪的需求。此案为现代简约风格,干净的线条和大面积的涂料调色,简约不失空间层次
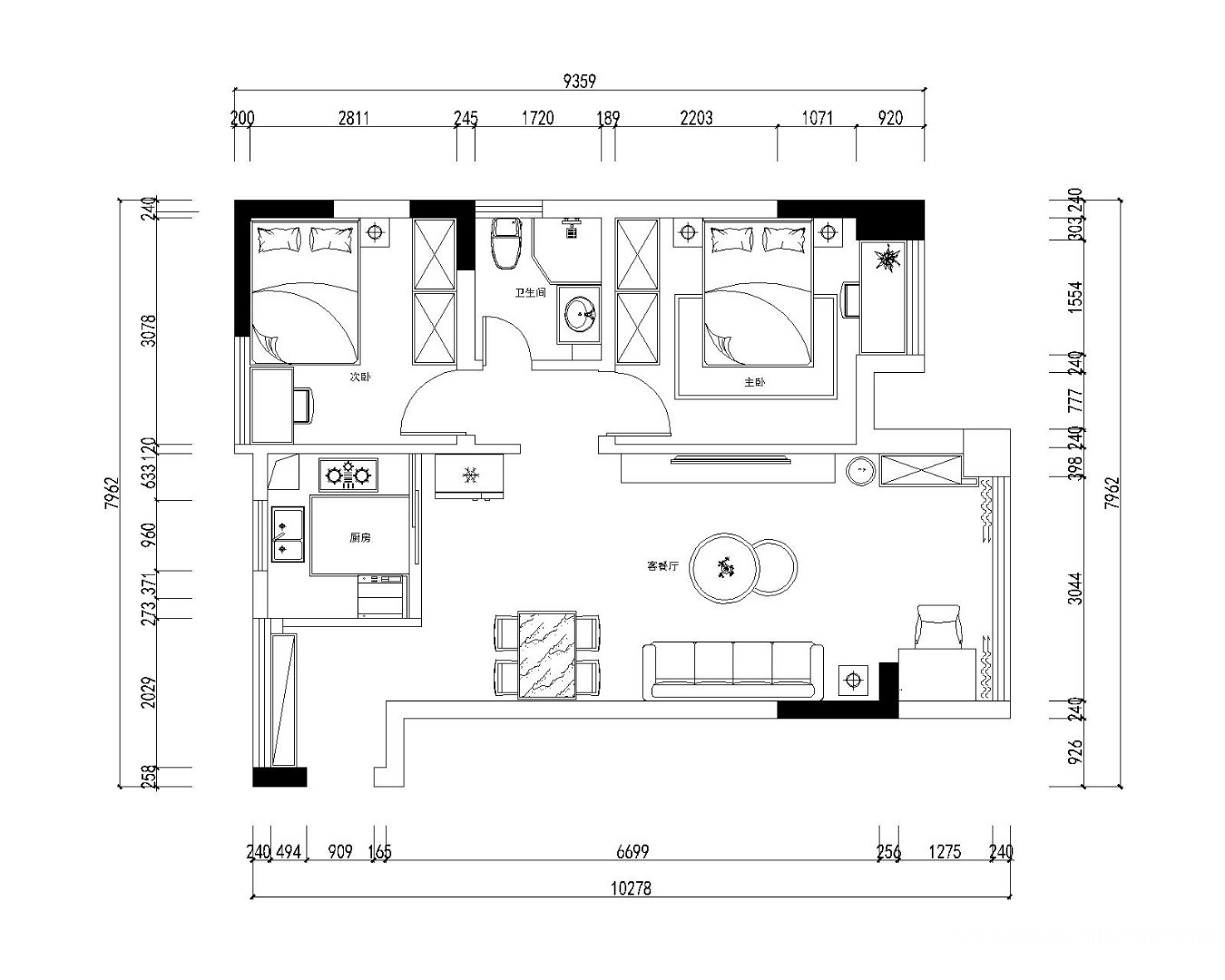
户型图
 
客厅
 



卧室
 
客户为独居男业主,热爱美食,希望厨房空间能更宽敞。方案特意为业主扩大厨房空间,满足业主对烹饪的需求。此案为现代简约风格,干净的线条和大面积的涂料调色,简约不失空间层次





