85㎡三居现代简约风格百花苑
发布时间:
2025年10月19日
小区:百花苑 面积:85㎡ 户型:三居 风格:现代简约风格
设计说明
1.改善住宅,对居住品质有较高的追求,偏好现代简约风格,注重空间的实用性,通透感与收纳空间。业主希望居家环境能满足日常舒适居住,又能适配亲友小聚的互动场景,同时对建材的环保性与耐用性非常关注。业主比较倾向与“轻装修,重装饰”的装修理念,希望能在简约风格中多一丝生活的温度
2.*业主诉求
1.喜欢空间敞亮,简洁通透点
2.喜欢有居家的氛围感,有生活情调
3.喜欢收纳空间充足
*全屋设计思路
1.主卧配备独立卫生间,保证主人生活私密性与便利性;卧室空间注重于休息氛围,床具,衣柜布局合理且预留了充足的活动空间,结合飘窗打造一个休闲时的阅读书桌
2.整个空间采用双眼皮吊顶,装饰点缀,打造精致、优雅的空间格调
3.设计通透阳台,与客餐厅形成一个整体,链接阳台空间映入室外自然光
*完工感言说明
1.空间设计的本质是居住者,一个好的作品呈现是需要设计者和居住者相互沟通,协调配合,这样打造出来的作品才是最满意也最适合业主的家,设计的目的大抵是让家拥有温度,让心灵有归途,点亮万家灯火~
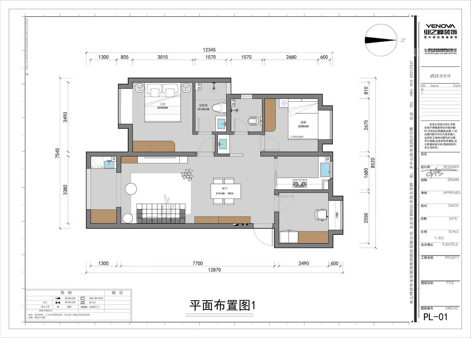
户型图

卧室


餐厅

客厅





京公安网备11010502040911