80㎡二居现代简约风格公园城
发布时间:
2021年02月24日
小区:公园城 面积:80㎡ 户型:二居 风格:现代简约风格
设计说明
以现代简约为基地,舒适自然为核心,融合别出心裁的考量,打造精睿低奢、人文艺术的品质居所。选着传热性能更好的地砖,铺设地暖后未达到更好的采暖效果,为家具增添舒适度、空间软装点缀出生机与艺术格调。
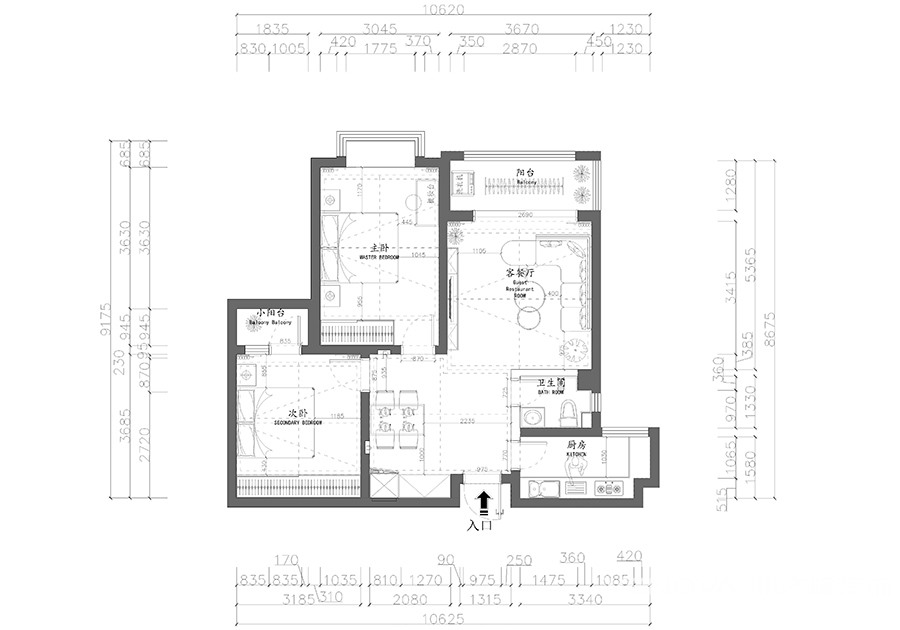
户型图

阳台


客厅




卫生间

卧室

以现代简约为基地,舒适自然为核心,融合别出心裁的考量,打造精睿低奢、人文艺术的品质居所。选着传热性能更好的地砖,铺设地暖后未达到更好的采暖效果,为家具增添舒适度、空间软装点缀出生机与艺术格调。








