150㎡四居轻奢风格公园城
发布时间:
2021年02月24日
小区:公园城 面积:150㎡ 户型:四居 风格:轻奢风格
设计说明
设计说明:在这套方案中,空间采用现代轻奢风格,以高级灰为主色调,在软装的设计中加入奢华高级的元素,使整体风格为现代轻奢,空间给人的感觉也是优雅轻奢,营造了一种高级大气的氛围。
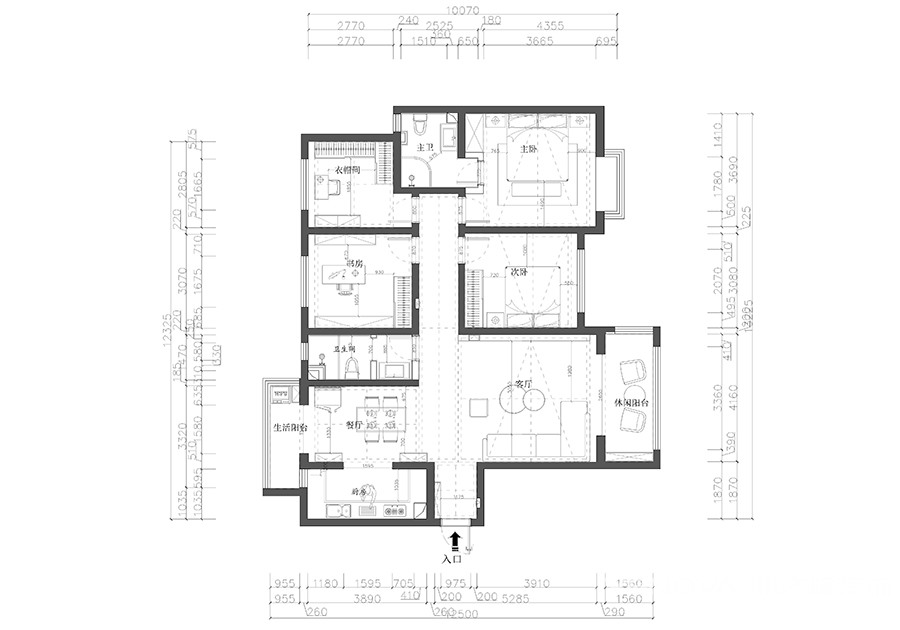
户型图

卫生间

卧室

餐厅

客厅



设计说明:在这套方案中,空间采用现代轻奢风格,以高级灰为主色调,在软装的设计中加入奢华高级的元素,使整体风格为现代轻奢,空间给人的感觉也是优雅轻奢,营造了一种高级大气的氛围。






