北京
【切换】
整屋案例
家居美图
实景案例
装修现场
装修攻略
无数据
搜索
010-84934479
扫码快速拨号 >
扫码快速拨号
首页
效果图
设计师
装修现场
装修攻略
品质保障
了解业之峰
当前位置:
首页
装修图库
案例相册
150㎡四居现代简约风格龙湖紫宸香颂
发布时间: 2020年11月06日
小区:龙湖紫宸香颂
面积:150㎡
户型:四居
风格:现代简约风格
设计说明
设计为现代风格,现代风格营造的是简单大气的氛围。其最突出强调的是设计的功能性和实用性。
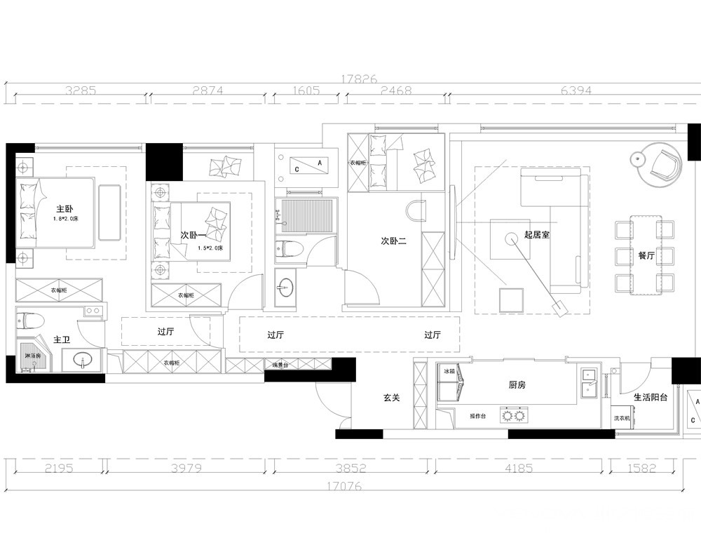
户型图
客厅
卧室
设计说明
户型图
客厅
卧室
本案设计师
业之峰专业设计师
免费咨询
我家装成这样多少钱?
㎡
获取报价
相关案例推荐
170㎡四居现代简约风格凤华·百丽澜庭
查看详情
139㎡四居现代简约风格锦云天府
查看详情
178㎡四居现代简约风格北大资源紫境东来项目
查看详情
123㎡四居现代简约风格电建地产泷悦长安
查看详情
150㎡四居现代简约风格团结村
查看详情
143㎡四居现代简约风格景寓学府
查看详情
140㎡四居现代简约风格华润置地紫云府
查看详情
265㎡四居现代简约风格天正银河湾
查看详情
196㎡四居现代简约风格大明宫紫檀府
查看详情
152㎡四居现代简约风格万科东望
查看详情
143㎡四居现代简约风格大华海启东方
查看详情
150㎡四居现代简约风格雁熙云著
查看详情
134㎡四居现代简约风格栖悦府
查看详情
280㎡四居现代简约风格曲江九里
查看详情
134㎡四居现代简约风格栖悦府
查看详情
178㎡四居现代简约风格新鸿基悦城
查看详情
168㎡四居现代简约风格宇信·山水和院
查看详情
128㎡四居现代简约风格建业桂园
查看详情
150㎡四居现代简约风格中房蓝韵
查看详情
180㎡四居现代简约风格萨尔斯堡
查看详情
展开
报价计算器
免费量房
免费设计
回到顶部