100㎡三居现代简约风格电视台职工宿舍
发布时间:
2020年11月06日
小区:电视台职工宿舍 面积:100㎡ 户型:三居 风格:现代简约风格
设计说明
设计为现代风格,现代风格营造的是简单大气的氛围。其最突出强调的是设计的功能性和实用性。最大限度的让所有的家居设计陈列都已最简单的方式呈现,并取消了多余复杂的东西。从而让室内室外宽敞明亮、线条和色彩单一又不缺乏趣味,营造出一种空间感和艺术感。
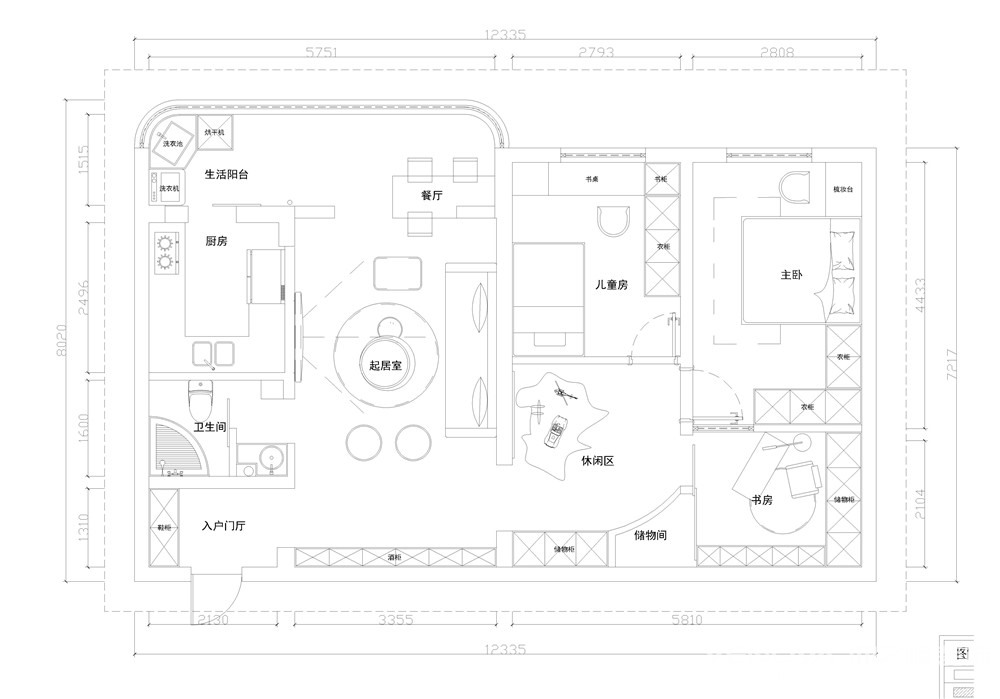
户型图

客厅


卧室






京公安网备11010502040911