150㎡三居现代简约风格海伦小镇
发布时间:
2020年07月15日
小区:海伦小镇 面积:150㎡ 户型:三居 风格:现代简约风格
设计说明
我们都是这场灾难中的幸运儿,城市也逐渐恢复了往日的繁忙,多少平静的面孔下内心经历了多大的磨难,此时,我们需要更需要一个舒适的港湾,不为迎合他人,只为自己能够踏踏实实的窝在里面,家更多的承载户主的幻想,简洁的颜色与高级材质给空间赋予了庄严高端的轮廓,柔软的沙发面料与那一抹绿植带给空间更多生命的生长。
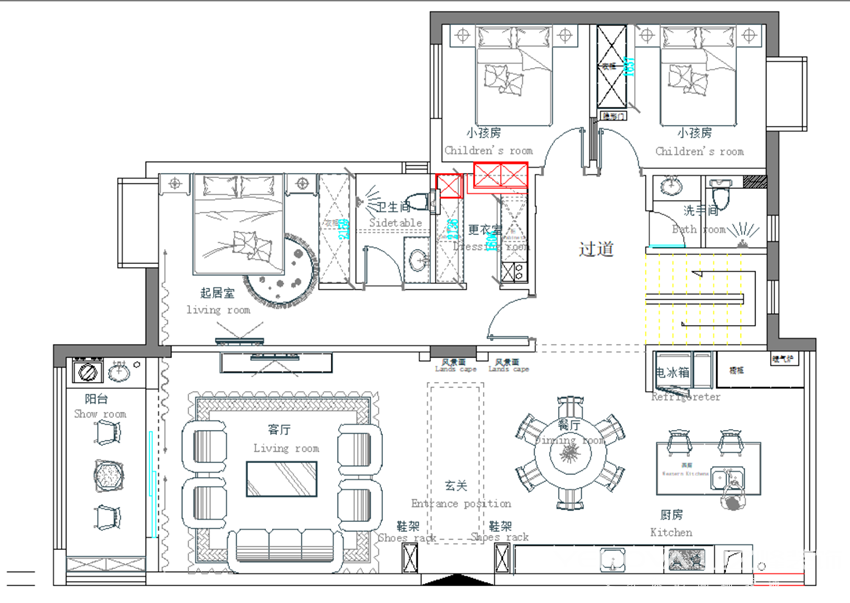
户型图

卧室

餐厅

客厅






京公安网备11010502040911