128㎡三居新中式风格阳光名邸
发布时间:
2020年07月15日
小区:阳光名邸 面积:128㎡ 户型:三居 风格:新中式风格
设计说明
对于喜欢中式风格但又追求时尚的年轻人来说,这套新中式风格家居真再完美不过。整体原木色基调典雅质朴、布局统一和谐。黄色、绿色家具、抱枕作为点缀跳跃色,清爽、干净更添层次之美。
试想,在某个落着小雨的午后,望着圆形的窗外,听着淅沥的雨滴敲打窗户的声音,是否有如身处水帘洞一般的清爽之感呢?
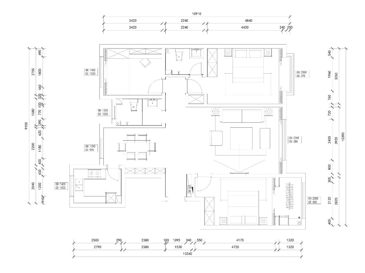
户型图

餐厅

卧室

客厅




玄关





京公安网备11010502040911