100㎡二居现代简约风格东辰祥瑞
发布时间:
2020年07月05日
小区:东辰祥瑞 面积:100㎡ 户型:二居 风格:现代简约风格
设计说明
客户两个在最开始接触的时候,就提出的自己想做现代中式的想法,最终在和客户不断沟通的情况下,本案效果全部做完,得到了客户的认可,宁静致远,空间沉稳低调,山水画,墨绿色,使空间低调内敛,简约的摆设,细节透露中式元素的淡雅。
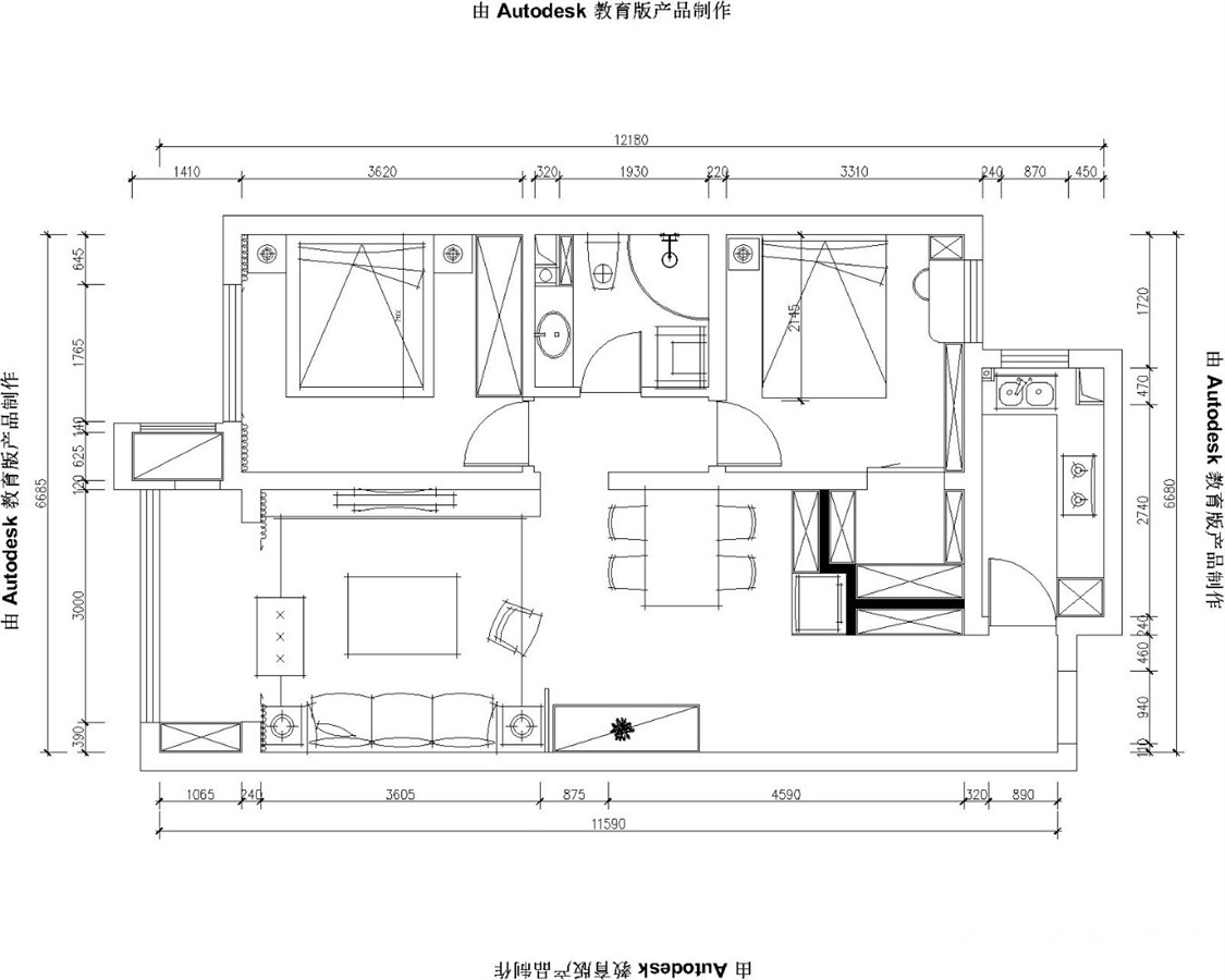
户型图

卧室


客厅








京公安网备11010502040911