117㎡三居现代简约风格北美枫情
发布时间:
2020年07月05日
小区:北美枫情 面积:117㎡ 户型:三居 风格:现代简约风格
设计说明
整体设计用材没有用太多的大理石和墙板等奢华元素,用进口地板与调色乳胶漆作为主要元素,简单明快,成本又低,环保无害。简约的家具不占太多空间,给宝宝留出充足的游乐地盘。
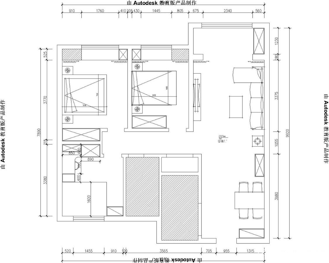
户型图

客厅





餐厅

书房

卧室

整体设计用材没有用太多的大理石和墙板等奢华元素,用进口地板与调色乳胶漆作为主要元素,简单明快,成本又低,环保无害。简约的家具不占太多空间,给宝宝留出充足的游乐地盘。








