214㎡四居新中式风格水悦龙庭
发布时间:
2020年06月19日
小区:水悦龙庭 面积:214㎡ 户型:四居 风格:新中式风格
设计说明
方案为四室两厅的户型,风格定向为新中风格。本案以“韵”为题,在整体空间中和谐基调.上彰显出浪漫的气质,软装与硬装上的中式元素的运用,成就了本案的精髓与灵魂,设计中不拘泥于单的设计风格,力图在奢华优雅中呈现出中式的文化气息,追求深沉里显露尊贵,典雅中浸透奢华的设计表现。
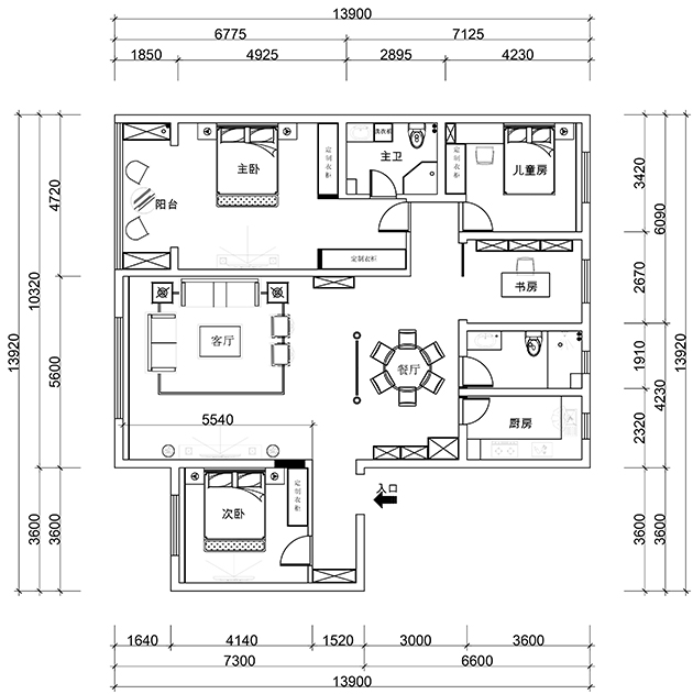
户型图

客厅




玄关

儿童房

卧室

书房

餐厅





京公安网备11010502040911