115㎡三居现代简约风格维多利亚时代
发布时间:
2020年06月19日
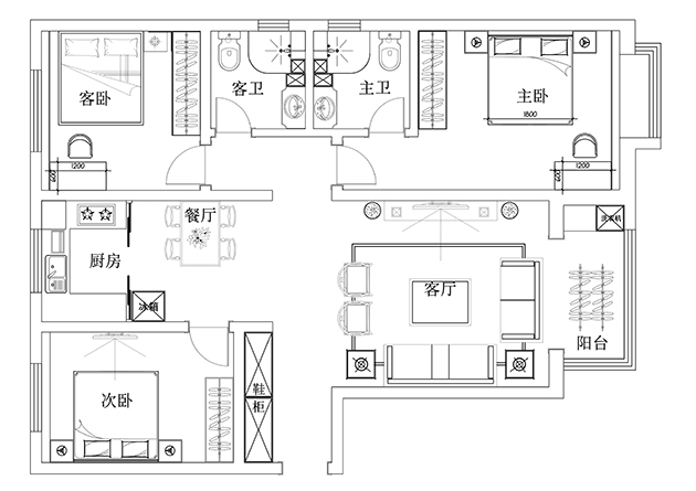
小区:维多利亚时代 面积:115㎡ 户型:三居 风格:现代简约风格
设计说明
方案为三室两厅的户型,风格定向为现代风格。 这个场所的色调通常是以白色、灰色等中性色彩为主,简洁统一的色彩可以让客厅显得更宽敞明亮。在现代风格装修中,无论是家具还是装饰品都有一个特点:线条、造型简洁,常使用金属玻璃、塑料制品,这样能增强居室的现代感,也能节省许多装修费用。
户型图

客厅



卧室






京公安网备11010502040911